
Osdorf / Jubiläum 150 Jahre selbstständige politische Gemeinde / Fotos vom Dorffest / 4. Mai 2026
Vom Zauberer über Hobbing Horsing und Baggern bis zum Boule – beim Dorffest gab es jede Menge Musik und Aktivitäten für Jung und Alt
Vom 1. bis zum 3. Mai 2026 feierte Osdorf ein besonderes Jubiläum: 150 Jahre selbstständige politische Gemeinde. Für die drei Festtage hatte der achtköpfige Festausschuss ein Programm auf die Beine gestellt, das für jede Osdorferin und jeden Osdorfer sowie für die Gäste in allen Altersgruppen etwas bereithielt. Den Auftakt machte ein Festumzug, an dem über 600 Menschen teilnahmen (Bericht siehe unten).
Am Samstag folgte nach dem Festakt am Vormittag (Bericht siehe unten) nachmittags ein Dorffest, das auf dem Festgelände/Sportplatz, auf dem Schulhof und auf dem Gelände der Kita Rappelkiste stattfand. Dieser Bericht besteht aus Fotos, die auf dem Dorffest gemacht wurden.














Die Jubiläumsfeierlichkeiten endeten am Sonntag mit Festgottesdienst, Kürung der neuen Dörpsmajestäten und Bekanntgabe des Ehrenamtspreisträgers 2026. Danach ging es ans große Aufräumen und Reinigen des Festgeländes.

Osdorf / Jubiläum 150 Jahre selbstständige politische Gemeinde / Tag drei der dreitägigen Feierlichkeiten am 3. Mai / neue Dörpsmajestäten / Vergabe des Ehrenamtspreises 2026 / Bilanz / 3. Mai 2026
Seit Sonntag übernehmen Dörpsprinzessin Emma und Dörpsprinz Joris das Zepter
Mit einem Festgottesdienst mit Kirchenchor und Posaunenchor im Festzelt startete am Sonntagvormittag der dritte und letzte Tag der dreitägigen Jubiläumsfeierlichkeiten der Gemeinde Osdorf. Am frühen Nachmittag standen die Vergabe des Ehrenamtspreises 2026 und die Kürung der neuen Dorfhoheiten auf dem Programm. Für die würdige musikalische Umrahmung sorgte das Wohld-Orchester. Nach 18 Monaten intensiver Vorbereitung und drei tollen Tagen zieht Bürgermeister Helge Kohrt eine positive Bilanz der Jubiläumsfeierlichkeiten: „Es hat sich wirklich gelohnt.“
In nicht öffentlicher Sitzung hatte die Gemeindevertretung vor einiger Zeit entschieden: Den Ehrenamtspreis 2026 der Gemeinde Osdorf soll die Freiwillige Feuerwehr Osdorf erhalten.
Ehrenamtspreis für die Freiwillige Feuerwehr Osdorf
Mit der Auszeichnung möchte die Gemeinde den ehrenamtlichen Einsatz und die dauernde Bereitschaft 24/7 der Feuerwehrkameradinnen und Feuerwehrkameraden zum Wohle der Gemeinschaft ehren. Gemeindewehrführer Jan Hoffmann bedankte sich im Namen der Wehr herzlich.

Krone und Schärpe für die neuen Dörpsmajestäten
Zweites Highlight des letztes Tages der Jubiläumsfeierlichkeiten war die Ernennung der neuen Dorfhoheiten. Ihre Vorgänger, Lenja Barske und Jonas Kohrt, hatten die Ehre, die Namen ihrer Nachfolger aus den Loseimern zu ziehen. Emma Adam (10) und Joris Keller (8) sind die neuen Dörpsmajestäten – die beiden bekamen Schärpe, Krone und Ernennungsurkunde und freuten sich riesig.
„Ohne euch hätten wir das alles nicht geschafft.“
Drei tolle Tage sind jetzt vorüber – es war ein Fest, an das sich alle noch lange erinnern werden. Vor 18 Monaten begann der Festausschuss mit den Vorbereitungen. Anfangs gehörten Helge Kohrt, Peter Hammerich, Peter Witt, Katja Eggebrecht, Wolfgang Radke, Thomas Friedrich und Thorsten Möller dazu. Vor einem Jahr holte der Bürgermeister Dorothee Morath und Dörte Kruse mit ins Boot. Ein Glücksgriff, wie er selbst am Sonntagnachmittag auf der Bühne sagte: „Ohne euch hätten wir das alles nicht geschafft.“


Großer Dank an alle ehrenamtlichen Helferinnen und Helfer
Der Dank des Bürgermeisters gilt aber nicht nur dem Orga-Team, sondern all‘ denjenigen, die über die drei Tage ehrenamtlich zum Gelingen des Festes beitrugen: sei es im Ausschank am Bierpils, beim Verkauf von Kaffee und Kuchen, beim Auf- und Abbau im Festzelt, beim Reinigen der Biertische und Bänke, bei der Betreuung und Verwahrung der verschiedenen Kassen oder beim Aufsammeln der Zigarettenkippen, die sich nach dem Jubiläumstanz am Samstagabend reichlich auf dem Sportplatz fanden.
„Das ist Gemeinschaft – das ist Osdorf.“
„Es war wirklich viel Arbeit, aber es hat sich wirklich gelohnt“, zieht Bürgermeister Kohrt eine positive Bilanz. Rund 40 Bürgerinnen und Bürger, die nicht kommunalpolitisch unterwegs sind, haben sich an den drei Tagen unterschiedlich lang ehrenamtlich engagiert. Der Bürgermeister bedankt sich bei allen herzlich und ist stolz: „Das ist Gemeinschaft – das ist Osdorf.“

Osdorf / Jubiläum 150 Jahre selbstständige politische Gemeinde / Tag zwei der dreitägigen Feierlichkeiten am 2. Mai / Festakt im Festzelt / 3. Mai 2026
Ministerpräsident Daniel Günther (CDU): „Ihr könnt verdammt stolz auf eure Gemeinde und eure Gemeinschaft sein“
Vom 1. bis zum 3. Mai 2026 feiert die Kommune 150 Jahre politische Eigenständigkeit. Nach dem überwältigenden Auftakt am ersten Tag durch den Festumzug stand am zweiten Tag vormittags der Festakt im Festzelt auf dem Programm. Bürgermeister Helge Kohrt (SPD) freute sich, Ministerpräsident Daniel Günther (CDU), Kreispräsidentin Sabine Mues (CDU) und Amtsvorsteher Jens Krabbenhöft (CDU) zu begrüßen, die Grußworte hielten. Der Einladung zum Festakt waren aber auch die Bürgermeister der anderen sieben amtsangehörigen Gemeinden und aus dem Amt Dänischenhagen sowie viele Osdorfer Bürgerinnen und Bürger gefolgt.
„Gemeinde Osdorf – kleines Dorf – große Liebe“ – so könnte die Überschrift von Helge Kohrts Begrüßungsrede lauten. „Wir sind zu Hause im schönen Osdorf – ein Hoch auf unsere Gemeinschaft“ – mit diesen Worten eröffnete der Bürgermeister seine Begrüßung.

Er dankte allen, die sich in Osdorf in irgendeiner Weise engagieren, auch den Kommunalpolitikerinnen und Kommunalpolitikern. „Denn Kommunalpolitik ist gelebte Demokratie vor Ort.“ Den letzten Teil des Grußworts hielt er auf Plattdeutsch, verbunden mit der Hoffnung, dass die Sprache, die teilweise nur noch von Älteren gesprochen wird, erhalten bleibt.
Das Grußwort des Ministerpräsidenten – auch ein Plädoyer für mehr Mut und mehr Eigenverantwortung
Mit Spannung wurde das Grußwort von Ministerpräsident Daniel Günther erwartet – es wurde weit mehr als ein reines Grußwort, es wurde zum Plädoyer: Es enthielt nicht nur Gratulationen an die Gemeinde, sondern auch Wünsche an die Gesellschaft: nach mehr Mut, mehr Eigenverantwortung, mehr Bereitschaft, Herausforderungen anzunehmen und die Ärmel hochzukrempeln sowie nach mehr Toleranz gegenüber Andersdenkenden, aber auch nach mehr Demut, Fröhlichkeit und Humor. „Ich würde mir wünschen, dass wir von diesem Geist wieder etwas mehr in unserer Gesellschaft haben.“
„Von zehn Entscheidungen sind vielleicht zwei falsch – über die acht richtigen wird nicht geredet, sondern nur über die zwei falschen.“

Der Ministerpräsident skizzierte in wenigen Minuten das Bild einer Gesellschaft, in der auch Fehler zugelassen werden sollten. Das heißt, dass eine Politikerin oder ein Politiker (sei es Berufspolitiker oder im Ehrenamt), die/der Fehler macht, dafür nicht derart als Schuldenbock hochstilisiert und unter Druck gesetzt werde wie es heutzutage der Fall sei. „Von zehn Entscheidungen sind vielleicht zwei falsch – über die acht richtigen wird nicht geredet, sondern nur über die zwei falschen.“ Das müsse sich ändern.
„Osdorf ist eine extrem lebendige Gemeinde. Hier funktioniert das eher einfach.“
Angesichts der aktuellen Weltlage spiele die Heimat für den Einzelnen mehr denn je eine wesentliche Rolle. „Wichtiger denn je ist die Frage: Fühlt man sich in seiner Heimat aufgehoben?“ Sein Eindruck, als er durch Osdorf zum Festplatz fuhr: „Osdorf ist eine extrem lebendige Gemeinde. Hier funktioniert das eher einfach.“ Es sei „harte Arbeit“, ein aktives Dorfleben hochzuhalten, sei es durch Ehrenamtler in den Vereinen, Verbänden oder in der Feuerwehr. Er forderte die Gäste im Festzelt auf: „Für all‘ diejenigen, die in unserer Gesellschaft die Gemeinschaft hochhalten, bitte einmal einen riesigen Applaus.“
„Dass so ein Bürgermeister wie Helge Kohrt das im Ehrenamt macht, ist nicht selbstverständlich.“
Einen zweiten Applaus erbat Daniel Günther sich für die Bürgerinnen und Bürger, die sich kommunalpolitisch engagieren. „Dass so ein Bürgermeister wie Helge Kohrt das im Ehrenamt macht, ist nicht selbstverständlich.“ Das gelte auch für die Gemeindevertreterinnen und Gemeindevertreter. In der kommunalen Selbstverwaltung seien Werte wie Freiheit und Demokratie unmittelbar erlebbar. Miteinander statt übereinander zu reden, auch dann, wenn es mehrere Meinungen gäbe, sei wichtig für die Demokratie.
„Ihr könnt verdammt stolz auf eure Gemeinde und eure Gemeinschaft sein und auf all‘ das, was ihr hier leistet.“
In Bezug auf Osdorfs Entwicklung habe er ein gutes Gefühl, so der Ministerpräsident. Mit den Worten „Ihr könnt verdammt stolz auf eure Gemeinde und eure Gemeinschaft sein und auf all‘ das, was ihr hier leistet“ beendete er seine Grußwort. Die Reaktion aller Anwesenden auf das Grußwort des Ministerpräsidenten waren minutenlange Standing Ovations.
„Ein Nachtreten nach Entscheidungen gibt es hier nicht, auch wenn eine der drei Fraktionen anderer Meinung ist.“
Die Grüße des Landrats des Kreises Rendsburg-Eckernförde überbrachte Kreispräsidentin Sabine Mues (CDU). Die Noerer Bürgermeisterin verbindet viel mit Osdorf. So besuchte sie als Kind die Osdorfer Grundschule.

Als Bürgermeisterin verbinde sie mit Osdorf eine politische Gemeinschaft beider Gemeinden (Noer ist Mitglied im Schulverband Osdorf-Felm-Noer). Auch sie lobte die demokratische Kultur in der Osdorfer Gemeindevertretung. „Ein Nachtreten nach Entscheidungen gibt es hier nicht, auch wenn eine der drei Fraktionen anderer Meinung ist.“
„Ihr seid eine funktionierende tolle Gemeinde. Bleibt, wie ihr seid, damit Osdorf bleibt, wie es ist.“
Einen besonderen Blick warf sie auf die Bürgermeister der Gemeinde: „Osdorf hatte und hat Bürgermeister, die sich nicht wichtiger nehmen als das Amt. Zurzeit habt ihr Helge. Und Helge, Du machst in meinen Augen einen tollen Job.“ Osdorf habe auch durch die Vereine und Verbände eine tolle Gemeinschaft, die auch die Kirche einbeziehe, die ein aktiver Bestandteil des Dorflebens sei. „Ihr seid eine funktionierende tolle Gemeinde. Bleibt, wie ihr seid, damit Osdorf bleibt, wie es ist.“

Toller Zusammenhalt der Gemeinden im Dänischen Wohld
Glückwünsche und Grüße der Amtsverwaltung und der anderen sieben amtsangehörigen Gemeinden überbrachte Amtsvorsteher Jens Krabbenhöft (CDU). Mit rund 2600 Einwohnern ist Osdorf nach Gettorf die zweitgrößte Gemeinde im Amt Dänischer Wohld. „Mein großer Dank gilt allen Gemeinden – wir haben einen tollen Zusammenhalt bei uns im Dänischen Wohld. Dazu leistet Osdorf einen großen Beitrag.“
„Der Dänische Wohld ist die gute Stube des Landes Schleswig-Holstein.“
Mit Blick auf die Demokratie betonte der Amtsvorsteher: „Für Bürgerinnen und Bürger ist die Gemeinde die erste Berührung mit der Demokratie.“ Die Gemeinde sei zum Beispiel für den Winterdienst oder für den Bau der Kita verantwortlich. Deswegen sei für eine gut funktionierende Demokratie eine gut funktionierende Gemeinde wichtig. Im Hinblick auf die noch folgenden Gemeindejubiläen im Amtsbereich (Gettorf, Schinkel, Neuwittenbek und Tüttendorf) in 2026 sagte Jens Krabbenhöft an die Adresse von Ministerpräsident Günther gerichtet: „Der Dänische Wohld ist die gute Stube des Landes Schleswig-Holstein.“

Dr. Thomas Friedrich und Fritz Lüthje
Die Festrede hielt Dr. Thomas Friedrich unter dem Titel „150 Jahre politische Osdorf und kommunale Selbstverwaltung“ – auch teilweise auf Plattdeutsch. Eine charmante kleine Rolle hatte der Osdorfer Fritz Lüthje inne, der im Publikum saß. Der 79-Jährige wurde von Dr. Friedrich gefragt, ob er wisse, was für ein Jubiläum eigentlich gefeiert werde. Fitz Lüthje antwortete auf Plattdeutsch mit dem Hinweis auf Kaiser Wilhelm I., der 1876 festgelegt hat, dass Osdorf sich selbst regieren sollte.

Die neue Osdorfer Chronik
Wolfgang Radke stellte die neue Chronik der Gemeinde „Osdorfer Chronik – Eine selbstständige Gemeinde im Wandel der Zeit“ vor, die Ende der Sommerferien fertig vorliegen soll. Ein Exemplar kostet 25 Euro. Bereits jetzt ist sie online über die Homepage der Gemeinde unter https://osdorf.de/chronik/ zu bestellen. Wolfgang Radke dankte allen, die zur Chronik-Redaktion gehören und in den vergangenen Monaten viel Freizeit investierten: Peter Hammerich, Dr. Thomas Friedrich, Dörte Kruse und Andrea Oder.

Ein Video von Jugendlichen über ihre Heimatgemeinde und Lieder von Andreas Plat und Matthis Radke
Zu Beginn des Festakts wurde ein Video gezeigt, das Osdorf aus der Sicht von Jugendlichen darstellt und das über die Medien der Gemeinde (zum Beispiel WhatsApp-Kanal des Bürgermeisters) zu sehen ist. Bürgermeister Kohrt dankte Matthis, Dan, Felix, Carina und Gerrit für diesen wunderbaren Blick auf Osdorf. Sein Dank galt auch Andreas Plat (Piano) und Matthis Radke (Gesang). Die beiden Osdorfer sorgten für die musikalische Umrahmung der Veranstaltung. Durch die teilweise auch persönliche Anmoderation und die Liedauswahl (u. a. „Die Gedanken sind frei“, „Sonderzug nach Pankow“, „Freiheit“, „Don’t forget where you came from“ und „Demokratie“) begeisterten die beiden Musiker die Gäste. Zum Schluss des Festakts sangen alle Anwesenden gemeinsam das Schleswig-Holstein-Lied.

Osdorf / Jubiläum 150 Jahre selbstständige politische Gemeinde / Tag eins der dreitägigen Feierlichkeiten / Festumzug / Bildergalerie / 1. Mai 2026
Das Jubiläum steht unter dem Motto „Unser Osdorf“ – über 600 Teilnehmende am Festumzug zeigen, dass die Osdorferinnen und Osdorfer sich mit ihrer Gemeinde wirklich verbunden fühlen
Vom 1. bis zum 3. Mai 2026 feiert die Kommune ihre politische Eigenständigkeit. 1876 wurde die Gemeinde Osdorf gegründet – beruhend auf einem Erlass von Kaiser Wilhelm I. vom 29. März 1876, der im Kreis Eckernförde die Bildung von 24 Landgemeindenbezirken vorsah – darunter auch Osdorf. Auftakt der Feierlichkeiten bildete ein Festumzug am Freitagvormittag durchs Dorf, der alle Erwartungen von Bürgermeister Helge Kohrt (SPD) und des achtköpfigen Festausschusses übertraf.
Zu dem kaiserlichen Erlass passte das Kaiserwetter am Vormittag des 1. Mai: Die Sonne strahlte mit allen Beteiligten, die an dem Vormittag in Osdorf unterwegs waren, um die Wette. Der Ort hat sich für die Feierlichkeiten fein gemacht: Bunte Bänder, Wimpel, Laternen, Blüten und Luftballons flattern an Hauswänden und Gartenzäunen, bunte selbstgebastelte Blumen wachsen am Straßenrand. Mit einem großen Banner am Ortseingang begrüßt Osdorf seine Gäste.
Vor eineinhalb Jahren gab es erste Ideen und Überlegungen
Es ist ein vielfältiges und anspruchsvolles Programm, das der Festausschuss erarbeitet hat. Für jede Altersgruppe ist etwas dabei. Vor eineinhalb Jahren gab es die ersten Ideen und Vorbereitungen für das Jubiläum. Die Anspannung der Organisatoren wuchs, je näher der Termin rückte.

Der Festumzug bildete den Auftakt der Feierlichkeiten
Das galt besonders für Maya Seyer und Franziska Hass, Mitglieder des Reitervereins. Sie hatten sich bereit erklärt, die Organisation des Festumzugs zu übernehmen, der den Auftakt der dreitägigen Feierlichkeiten bilden sollte. Es gelang den beiden Frauen, ganz Osdorf zu mobilisieren. Über 600 Menschen nahmen an dem Umzug teil, der im Bürgerpark startete und durch die Straßenzüge Am Augustenhof und Schmiederedder über die Hauptstraße zum Sportplatz/Festgelände führte.
Sie nahmen am Festumzug teil:
Das sind die Teilnehmerinnen und Teilnehmer am Festumzug: Vereine, Verbände, ortsansässige Unternehmen und Institutionen: Freds Werkstatt, Feuerwehr Osdorf, Spielgemeinschaft der Spielmannszüge Gettorf/Ascheffel, Gemeindevertretung, Jugendbeirat, Kita Rappelkiste, Grundschule Osdorf, Jugendfeuerwehr, Ersthelfer Jugendrotkreuz, Kirchengemeinde, Knochenbruchgilde, Reiterverein, Kleingartenverein, Sozialverband, DRK-Ortsverein, Landjugend, Landfrauen, Osdorfer Sportverein mit vielen Sparten, OSV-Sportschützen, Pony-, Reit- und Fahrverein Borghorsterhütten (mit Ponys), Kitzrettung Dänischer Wohld, „Wir sind Osdorf“, Osdorfer Oldtimer mit vier Treckern und Vertreter ortsansässiger Unternehmen.














Jubel am Straßenrand
Viele Einwohnerinnen und Einwohner suchten sich am Rand der Hauptstraße ein Plätzchen, um dem Festumzug zujubeln zu können. Viele hatten sich Getränke mitgebracht, einige hatten eigens Tisch und Stühle aufgebaut, um gemütlich in Premiumlage alles sehen zu können.
„Das ist so ein schöner Eindruck, den ich gewonnen habe. So viele Osdorferinnen und Osdorfer haben sich aufgemacht, um dabei zu sein.“
Bürgermeister Helge Kohrt ist überwältigt von der Resonanz, sowohl der Teilnehmenden am Festumzug als auch der Menschen am Straßenrand: „Es war megaschön. Das ist so ein schöner Eindruck, den ich gewonnen habe. So viele Osdorferinnen und Osdorfer haben sich aufgemacht, um dabei zu sein.“
Großes Treffen im Festzelt
Der Festumzug endete auf dem Sportplatz, wo noch eine Ehrenrunde gedreht wurde, bevor der Umzug sich auflöste. Auf alle wartete ein großes Festzelt, wo es kühle Getränke und ab 14.30 Uhr zünftige Musik mit den „Holsteiner Lausbuam“ gab. Im Festzelt startete auch die Dorfrallye – die Preisverleihung findet am Sonntag, 3. Mai, statt.
Dorf-Pub-Quiz am Freitagabend
Wer immer schon einmal wissen wollte, wie der Schulalltag eines Schülers vor 60 Jahren aussah, hatte am Nachmittag dazu Gelegenheit: In der Grundschule gab es einen entsprechenden Vortrag von Karl-Heinz Strohmeyer. Mit einem Dorf-Pub-Quiz der beiden Stubbendorfer Mike und Fenja in Dibberns Gasthof (Beginn 19 Uhr) endet der erste Festtag.
Das Programm am zweiten Festtag:
Mit einem Festakt mit geladenen Gästen, u. a. mit Ministerpräsident Daniel Günther, Kreispräsidentin Sabine Mues und Amtsvorsteher Jens Krabbenhöft, beginnt der zweite Festtag, Samstag, 2. Mai. Ab 14.30 Uhr sind alle Osdorferinnen und Osdorfer sowie Gäste zum Dorffest und zum Tag der Offenen Tür in den kommunalen Einrichtungen eingeladen. Vereine und Verbände präsentieren sich auf dem Markt der Möglichkeiten (Sportplatz). Auf dem Gelände von Kita, Schule und Feuerwehr gibt es Spiel und Spaß für die Kinder. Für fetzige Musik sorgt die Marchingband aus Kiel „Super RabatzKi“. Der Jubiläumstanz im Festzelt ab 20 Uhr beendet den zweiten Festtag.

Gemeindevertretung Osdorf, Teil 2 / Außenbereichssatzung Austerlitz / Feuerwehr / Wärmenetz / 16. April 2026
Klares Signal der Politik: Mit der Außenbereichssatzung für Austerlitz gestaltet die Gemeinde die Zukunft des Dorfes
In ihrer jüngsten Sitzung, zu der Bürgermeister Helge Kohrt (SPD) wie gewohnt in Dibberns Gasthof begrüßte, brachte die Gemeindevertretung die Außenbereichssatzung für den Ortsteil Austerlitz auf den Weg. Damit möchte die Gemeinde die dörfliche Struktur und Prägung erhalten und sichern. Weitere Themen der Sitzung waren u. a. die Freiwillige Feuerwehr Osdorf, das Wärmenetz und die Sanierung des Radwegs an L 44.
Rund ein Jahr lang hat sich die Arbeitsgruppe „Außenbereichssatzung“ mit dem Thema beschäftigt. Ziel war es, auch in den Ortsteilen rechtlich abgesichert die Möglichkeit zu schaffen, Wohnraum zu errichten. Das Ergebnis der Arbeitsgruppe: Der Ortsteil Austerlitz ist sehr gut für eine Außenbereichssatzung geeignet. Fachlich begleitet durch das Planungsbüro BCS Stadt+Region wurde eine Außenbereichssatzung erarbeitet.
Austerlitz bisher: Festlegung als Fläche für die Landwirtschaft
Mit der Satzung verfolgt die Gemeinde das Ziel, eine gewisse wohnbauliche Entwicklung in Austerlitz zu ermöglichen. Das war bislang rechtlich nicht vorgesehen, da der Ortsteil im Flächennutzungsplan der Gemeinde als Fläche für die Landwirtschaft festgelegt war. Wohnbauliche Vorhaben mussten laut Baugesetzbuch abgelehnt werden.

Die Außenbereichssatzung ist auf den Geltungsbereich 1 begrenzt
Mit der Außenbereichssatzung setzt die Gemeinde ein deutliches Signal, den Ortsteil zu stärken. Unter der Berücksichtigung der dörflichen Struktur kann jetzt gebaut werden. So sollen die Lücken in der Bebauung entlang der zentralen Straße Austerlitz auf längere Sicht verträglich durch neue Bebauung ergänzt werden. Auf diese Weise werden ein geschlossenes Ortsbild und neuer Wohnraum geschaffen. Aktuell leben 58 Einwohnerinnen und Einwohner in Austerlitz (Stand 16. April 2026). Die Außenbereichssatzung ist auf ihren Geltungsbereich, Teilbereich 1 (in der Planskizze links), begrenzt. Dabei handelt es sich um den Teil von Austerlitz Richtung Borghorst.
Ernennung und Vereidigung der Gemeindewehrführung
Jan Hoffmann geht in seine dritte Amtszeit als Gemeindewehrführer der Freiwilligen Feuerwehr Osdorf. Für seinen Stellvertreter, Martin Hackauf, ist es die erste Amtsperiode. Beide wurden auf der Jahreshauptversammlung der Feuerwehr Anfang des Jahres gewählt. Da es sich um Ehrenämter handelt, mussten beide von der Gemeindevertretung in ihren Ämtern bestätigt und von Bürgermeister Kohrt ernannt und vereidigt werden.

Warum ein aktueller Feuerwehrbedarfsplan beschlossen werden muss
Eine wichtige Planungsgrundlage für die Feuerwehr ist der Feuerwehrbedarfsplan, der alle fünf Jahre fortzuschreiben ist. Die aktuelle Fortschreibung enthält als Maßnahmen die Beschlüsse der Gemeindevertretung für die Anschaffung eines neuen Löschfahrzeugs (LF 10) und die Planung einer Erweiterung des Gerätehauses bzw. eines Neubaus. Um Fördermittel beantragen zu können, ist die Vorlage eines aktuellen und beschlossenen Feuerwehrbedarfsplans erforderlich. Die Gemeindevertretung stimmte dem Plan einstimmig zu. Gemeindewehrführer Hoffmann dankte für die „gute und regelmäßige Zusammenarbeit“. Auch in Sachen Feuerwehrgerätehaus sei man auf einem guten Weg.
Sachstand Wärmenetz: 2025 gab es vom Bund den Förderbescheid
Die Gemeinde Osdorf möchte im Ortskern ein klimaneutrales Wärmenetz bauen. Vor einem Jahr, im Februar 2025, hat der Bund den Antrag der Gemeinde auf Förderung des Wärmenetzes positiv beschieden. Über 40 Prozent der Kosten, zirka 11 Millionen Euro, übernimmt der Bund. Bedingung: Osdorf muss innerhalb von vier Jahren, gegebenenfalls mit Option auf eine Verlängerung von zwei Jahren, das Wärmenetz gebaut haben.
Prüfung einer Wärmenetz-Betreibergesellschaft
Für die Gemeinde bedeutet das, das Projekt zügig in Zusammenarbeit mit dem Projektpartner Q.X Martin Lass und der Amtsverwaltung voranzubringen. Geplant ist die Gründung einer Wärmenetz-Betreibergesellschaft. Der Gesellschaftsvertrag, der die Mitgliedschaft der beteiligten Gemeinden Osdorf und Gettorf vorsieht, wurde von einer unabhängigen Unternehmensberatung geprüft. Nach Auskunft von Bürgermeister Kohrt ist der Tenor der Aussage, dass der Gesellschaftsvertrag bei einer Anschlussquote von 50 bis 70 Prozent umsetzbar sei.

Weitaus geringere Eigenkapitalquote der Gemeinde
Eine weitere Erkenntnis laut Bürgermeister Kohrt: Die Eigenkapitalquote der Beteiligten könne gegebenenfalls geringer ausfallen. Im Klartext: Die finanzielle Belastung der Gemeinde könnte demnach nur knapp 200.000 Euro anstatt bisher angenommene 913.000 Euro betragen, so der Bürgermeister.
Mögliche Anschlusskosten für die Haushalte
Interessant für die Bürgerinnen und Bürger: In Sachen Kosten gibt es die ersten Rahmendaten. Danach würde ein Anschluss pro Haushalt zirka 5000 Euro kosten. Ziel ist es, dass der Preis pro Kilowatt unter 15 Cent liegt.
Wärmenetz-Betreibergesellschaft – das weitere Vorgehen
Bürgermeister Kohrt stellte das weitere Vorgehen vor: Am 21. April gibt es eine gemeinsame Informationsveranstaltung für die Gemeindevertretungen Gettorf und Osdorf. „Gegebenenfalls können wir bereits im Juni Beschlüsse fassen und die Gesellschaft zum 1. Juli gründen.“ Für Osdorf würde die Einlage des Stammkapitals unter 5000 Euro bettragen.
Sanierung L 44 Juli bis Oktober: Sanierung der Radwegstrecken?
Der Landesbetrieb Straßenbau und Verkehr Schleswig-Holstein (LBV.SH) plant, zwischen Juli und Oktober 2026 in drei Teilabschnitten die Straße zu sanieren. Er bietet an, im Zuge der Sanierungsarbeiten die Radwegstrecken, die in der Baulast der Gemeinde liegen, ebenfalls zu sanieren. Nach Berechnung des LBV.SH liegen die Kosten bei knapp 144.000 Euro.

Beschluss: Nur Radweg Ortsdurchfahrt Borghorsterhütten
Um Kosten zu sparen, beschloss die Gemeindevertretung, ausschließlich den Radweg von der Einmündung Am Bokholt bis zum Ende in der Ortsdurchfahrt Borghorsterhütten durch den LBV.SH sanieren zu lassen. Der erste Abschnitt, Kreuzung Hauptstraße/Dänischenhagener Straße bis zur Einmündung Gildeweg, soll nicht gemacht werden. Eine Sanierung macht nach Auffassung der Gemeindevertretung erst Sinn, wenn die Wärmeleitung des Wärmenetzes zum Heizhaus, das an der Dänischenhagener Straße errichtet werden soll, gelegt wird.
In Kürze:
Grillhütte: Im Bürgerpark soll eine Grillhütte errichtet werden. Die AktivRegion fördert das Projekt mit 80 Prozent der förderfähigen Kosten.
Photovoltaik: Auf dem Weg zur klimaneutralen Gemeinde gibt es einen weiteren Fortschritt. Der Förderantrag an den Kreis, Photovoltaik auf dem Dach der Kita Lütte Rappekiste, wurde positiv beschieden. Jetzt bereitet die Verwaltung die Ausschreibung vor.
Sanierungsmanagement: Das Sanierungsmanagement der Gemeinde soll für zwei Jahre verlängert werden. Die Ausschreibung wird von der Amtsverwaltung vorbereitet.
Kommunale Wärmeplanung: Es hat eine Eignungsprüfung der einzelnen Gemeindegebiete durch die Klimaschutzagentur stattgefunden. Die Ergebnisse (vorläufig): Größtenteils geeignet für eine zentrale Wärmeplanung ist der Kernort Osdorf. Ortsteile wie Austerlitz und Stubbendorf sind keine Potenzialgebiete für eine zentrale Wärmeplanung. Ein konkretes Potenzial der Biogasanlage für eine Wärmeversorgung von Stubbendorf und Austerlitz ist nicht gegeben.
Borghorst und Borghorsterhütten sowie alle weiteren Gebäudegruppen in den Außenbereichen sind auf aufgrund der geringen Bebauungs- und damit Wärmebedarfsdichte direkt als dezentrale Wärmeversorgungsgebiete definiert. Im Klartext: Eine zentrale Wärmeversorgung ist hier nicht wirtschaftlich. Im dritten Quartal 2026 soll es eine zentrale Informationsveranstaltung für die Öffentlichkeit zur Wärmeplanung geben.

Osdorf / Gettorfer Straße 1 / 10. April 2026
Bodenuntersuchung Gettorfer Straße 1: Zweite Sondierungsphase ist angelaufen – Bauschutt wird geschreddert
In der jüngsten Sitzung der Gemeindevertretung war eines der Themen im Bericht von Bürgermeister Helge Kohrt (SPD) das gemeindeeigene Grundstück Gettorfer Straße 1 bzw. die laufenden Bodenuntersuchungen. Im Rahmen einer orientierenden Erstuntersuchung 2023 wurde auf dem Areal eine Bodenverunreinigung mit chlorierten Kohlenwasserstoffen (LCKW) entdeckt – seitdem wird der Boden untersucht. Das Grundstück war bereits vorher im Altlasten-Kataster des Kreises eingetragen.
Das Unternehmen RATISBONA Handelsimmobilien hat im März vor zwei Jahren 4264 Quadratmeter der insgesamt 8700 Quadratmeter großen Fläche an der Gettorfer Straße gekauft. Dort soll ein Lebensmittel-Discounter mit einer Verkaufsfläche von 798 Quadratmetern entstehen. Ursprünglich sollte der Netto-Marken-Discounter bereits Mitte 2026 seine Türen öffnen. Durch die notwendigen Bodenuntersuchungen verzögert sich das Projekt. RATISBONA ist über alle Schritte informiert. Nach Auskunft von Bürgermeister Kohrt hält das Unternehmen an seinem Plan, den Netto-Markt zu bauen, fest.
Es tut sich etwas auf dem Gelände an der Gettorfer Straße 1: Alle Gebäude sind seit Ende Dezember abgerissen, stattdessen befindet sich ein großer Berg Bauschutt auf der Grundstückseite an der Felmer Straße. Seit einigen Tagen leistet ein Bauschuttschredder ganze Arbeit. Mächtige Betonbrocken werden zunächst von einer Baggerschaufel zerstoßen, um im Schredder zermahlen zu werden. Das feine Material wird auf dem Areal zwischengelagert, bevor es für andere Zwecke, beispielsweise Ausbesserung von landwirtschaftlichen Wegen, abtransportiert wird.
„Für die Baugenehmigung für den Lebensmittelmarkt ist entscheidend, was im Boden ist.“
„Für die Baugenehmigung für den Lebensmittelmarkt ist entscheidend, was im Boden ist“, sagt Bürgermeister Kohrt. Aufgrund der ersten Ergebnisse aus der Erstuntersuchung 2023 wurde ein Konzept entwickelt, wie die Bodenverunreinigung am effektivsten eingegrenzt werden kann. Nach Auskunft der Unteren Bodenschutzbehörde des Kreises bietet sich aus Zeit- und Kostengründen eine andere Methode als die herkömmliche Art der Bodenprobenahme an. Zum Einsatz kommt die sogenannte MIP-Sondierung (Membrane interface Probe).

So funktioniert die MIP-Sondierung
Bereits im November 2025 konnte die Bodenverunreinigung durch die MIP-Sondierungen mit Tiefen bis zu 24 Metern unter der Geländeoberkante weiter eingegrenzt werden. Die Verfahrensweise: Eine Sonde mit einer beheizten, halbdurchlässigen Membran wird mithilfe einer Bohrlafette in den Boden gedrückt. Durch die Hitze verdampfen im Boden vorhandene Schadstoffe, gelangen durch die Membran und werden durch ein Trägergas an der Oberfläche zu Detektoren geleitet, die verschiedene chemische Verbindungen in Gasströmen nachweisen können.
„Es wird sozusagen live gemessen, wir bekommen Echtzeitdaten.“
„Es wird sozusagen live gemessen, wir bekommen Echtzeitdaten“, erklärt Robert Lux, Gutachter vom begleitenden Planungsbüro Umwelt Control Labor GmbH, „die Daten sagen uns, wo genau sich welche Schadstoffe in welcher Menge befinden.“ Es handele sich sozusagen um ein Screening der Schadstoffverteilung. Auf diese Weise ließen sich Schadstoffkonzentrationen schnell und detailliert eingrenzen.
Die zweite Sondierungsphase zur Eingrenzung der Schadstoffe ist angelaufen
Für die Dauer einer Sondierung rechnet man mit rund zweieinhalb Stunden. Es werden mehrere Punkte an verschiedenen Stellen des Grundstücks sondiert. Da die Bodenverunreinigung in der ersten Sondierungsphase im November/Dezember nicht vollständig erfasst werden konnte, läuft seit einigen Tagen die zweite Sondierungsphase.
Bohrungen sollen die Ergebnisse überprüfen
Liegen die Ergebnisse vor, sollen diese nach Auskunft der Unteren Bodenschutzbehörde mit Bohrungen validiert werden. „Je nach Ergebnis erfolgt noch die Installation von Grundwassermessstellen zur Erfassung der hydrologischen Situation“, heißt es von der Fachbehörde.

Fachgutachter soll Ergebnisse zusammenfassen und weiteres Vorgehen planen
Anschließend soll die weitere Vorgehensweise zur Beseitigung der Bodenverunreinigung auf Basis der gesammelten Ergebnisse durch einen Fachgutachter geplant werden. Auf dieser Grundlage werden Art und Umfang der notwendigen Bodensanierung festgelegt.
Land fördert die Kosten mit 75 Prozent
„Wir müssen das einfach abwarten“, so Bürgermeister Kohrt, der es begrüßt, dass die zweite Sondierungsphase angelaufen ist. Er hofft auf schnelle Ergebnisse. Die Kosten für die Detailuntersuchung belaufen sich auf 100.000 Euro. Eine Förderzusage in Höhe von 75 Prozent des Ministeriums für Energiewende, Klimaschutz, Umwelt und Natur des Landes Schleswig-Holstein liegt vor.

Bau- und Wegeausschuss / Radweg an der Landesstraße 44 von Osdorf bis Borghorsterhütten / Außenbereichssatzung für Ortsteil Austerlitz / 5. März 2026
Der LBV.SH plant ab Sommer 2026, die L 44 zwischen Osdorf und Birkenmoor zu sanieren. Sein Angebot an die Gemeinde: für knapp 144.000 Euro den Radweg ebenfalls zu sanieren. Viel Geld für die Gemeinde. Sie überlegt, nur das Teilstück in Borghorsterhütten machen zu lassen
In der jüngsten Sitzung des Bau- und Wegeausschusses am 26. Februar 2026 erläuterte Vorsitzender Thorsten Möller (SPD) den Tagesordnungspunkt „Sanierung der L 44“. Es handelt sich um eine mögliche Sanierung des kombinierten Rad- und Fußweges an der Landesstraße zwischen Osdorf und Borghorsterhütten durch den Landesbetrieb Straßenbau und Verkehr Schleswig-Holstein (LBV.SH).
Der LBV.SH plant, zwischen Juli und Oktober 2026 in drei Teilabschnitten die Sanierung der Landesstraße durchzuführen. Er bietet an, im Zuge der Sanierungsarbeiten die Radwegstrecken, die in der Baulast der Gemeinde liegen, ebenfalls zu sanieren. Nach Berechnung des LBV.SH liegen die Kosten bei knapp 144.000 Euro.
Viel Geld für die Gemeinde, die aufgrund ihrer finanziellen Lage überlegt, nur die zweite Radwegstrecke, von der Einmündung Am Bokholt bis zum Ende des Ortsteils Borghorsterhütten, sanieren zu lassen. In der Ausschusssitzung wurde die Idee entwickelt, den Abschnitt ab der Kreuzung Hauptstraße/Dänischenhagener Straße bis zur Einmündung Gildeweg in Eigenregie sanieren bzw. flicken zu lassen.
Ein Beschluss wurde nicht gefasst. Es soll ein Kostenangebot für die Flickarbeiten eingeholt werden.
Hintergrund: In einem Vertrag von 1999 zwischen der Gemeinde und der damaligen Straßenbaubehörde wurde festgelegt, dass die Straßenbaulast für die betroffenen Radwegstrecken bei der Gemeinde liegt. Konkret bedeutet das für Osdorf, dass die Gemeinde für Unterhaltung, Reinigung und Verkehrssicherheit dieser Radwegstrecken zuständig ist und damit auch die Kosten tragen muss.
Steigende Baukosten – Synergieeffekte nutzen
Für 144.000 Euro sanieren oder nicht sanieren? Das war die Frage, auf die auf der Sitzung eine Antwort gesucht wurde. Vorsitzender Möller sagte, dass in zehn Jahren die Sanierungskosten wesentlich höher sein würden. Bürgermeister Helge Kohrt (SPD) sah die Chance für Synergieeffekte: Man könne im Zuge der Bauarbeiten zeitgleich die Rohrleitungen für das geplante Wärmenetz verlegen. Außerdem werde bei der Sanierung der Untergrund neu gebaut, dann hätte die Gemeinde 25 Jahre Ruhe mit der Unterhaltung des Radweges.
Wir sollten gar nichts machen, sondern nur die Stellen flicken, die kaputt sind.
Mit Hinweis auf frisch sanierte Radwege in der Region, bei denen schon nach relativ kurzer Zeit wieder Schäden zu sehen seien, zweifelte Rolf Ohlsen (WgO) daran: „Wir sollten gar nichts machen, sondern nur die Stellen flicken, die kaputt sind.“ Es herrschte allgemeine Einigkeit darüber, dass es bei der Haushaltslage der Gemeinde schwer zu entscheiden sei, ob man einen neuen Radweg bauen sollte, wenn man nicht wisse, ob er 25 Jahre halten würde.
Idee: LBV.SH soll nur Radweg in Borghorsterhütten sanieren
Schließlich kam die Idee auf, das Sanierungsvorhaben aufzuteilen. Da im Ortsteil Borghorsterhütten aufgrund der direkten Lage des Radweges an der Straße eine komplizierte Situation in Bezug auf die Arbeitssicherheit vorhanden sei, solle dort der LBV.SH die Sanierung übernehmen. Man will Kontakt zum LBV.SH aufnehmen und um ein neues Kostenangebot für diese Teilstrecke bitten.

Für die Flickarbeiten auf der Radwegstrecke von der Kreuzung Hauptstraße/Dänischenhagener Straße bis zur Einmündung Gildeweg soll ein Kostenangebot eingeholt werden.
Außenbereichssatzung für Austerlitz
Für den Ortsteil Austerlitz hat der Ausschuss eine Außenbereichssatzung (Variante 1) beschlossen. Hintergrund: Austerlitz ist im Flächennutzungsplan der Gemeinde als Fläche für die Landwirtschaft festgelegt. Eine wohnbauliche Entwicklung ist deshalb zurzeit nicht möglich. Um den Einwohnerinnen und Einwohnern eine gewisse wohnbauliche Entwicklung zu ermöglichen, soll die Außenbereichssatzung erlassen werden. Die letzte Entscheidung trifft die Gemeindevertretung auf ihrer Sitzung am 24. März.
In Kürze:
Neue Regelung für Parkplatz am Tennisplatz: Ab 1. April 2026 dürfen nur noch Pkw auf dem Parkplatz parken.
Helfer gesucht: Für das dreitägige Fest zum Gemeindejubiläum (1. bis 3. Mai) werden noch Helferinnen und Helfer gesucht. Interessenten melden sich bei Dorothee Morath, Tel. 0176/31 730 138
Grillhütte: Der Bürgerpark soll eine Grillhütte bekommen. Bei der AktivRegion wurde ein Antrag auf eine 80-prozentige Förderung eingereicht.
Regenrückhaltebecken Fasanenweg: Das Regenrückhaltebecken, das vor rund 40 Jahren gebaut wurde, ist mittlerweile zu klein geworden. Das gilt besonders bei Starkregenereignissen. Das Becken soll instandgesetzt werden. Dafür müssen die Bäume, die ebenfalls über 40 Jahre alt sind, an dieser Stelle gefällt werden. Für das Vorgehen muss eine Genehmigung der Unteren Naturschutzbehörde eingeholt werden. Liegt diese vor, soll über das weitere Vorgehen beraten werden.
Sanierung B-Sportplatz: Ein Antrag auf Förderung aus der „Sportmilliarde“ des Bundes wurde rechtzeitig gestellt. Die erste Förderrate mit 333 Millionen Euro ist total überzeichnet. Allein aus Schleswig-Holstein wurden Anträge in Höhe von 356 Millionen Euro abgegeben. Die Gemeinde muss sich wie alle Antragsteller bis April gedulden.
Multifunktionsgebäude/Sportheim: Es gibt eine neue Planung des Gebäudes an anderer Stelle – dieses Mal ohne Aufzug, was die Kosten reduziert. Die Planung liegt erst einmal in der Schublade. „Aber wir wissen jetzt, dass es an dieser Stelle geht“, so Bürgermeister Kohrt.
Planung Feuerwehrgerätehaus: Andreas Claus, Architekt aus Osdorf, kümmert sich ehrenamtlich um die Raumplanung eines „neuen“ Feuerwehrgerätehauses am Bestandsstandort. Hinsichtlich der Räumlichkeiten gibt es am Standort Entwicklungspotenzial (Umbau oder Anbau?). Für die verkehrliche Situation an der Ein- und Ausfahrt trifft das nicht zu hundert Prozent zu. Dort muss eine Kompromisslösung gefunden werden. Zurzeit wird eine Machbarkeitsstudie erarbeitet.

Osdorf / Gettorfer Straße 1 / Bebauungsplan Nr. 19 „Gildeweg“ / 6. November 2025
Gettorfer Straße 1: Die Abrissarbeiten kommen gut voran
Auf dem gemeindeeigenen Grundstück an der Gettorfer Straße 1 hat seit einigen Wochen der Abrissbagger das Sagen. Ende August haben die Abrissarbeiten der ehemaligen Gewerbebetriebe-Gebäude auf dem gemeindeeigenen Grundstück begonnen. Nach Auskunft von Bürgermeister Helge Kohrt (SPD) liegen die Arbeiten im Zeitplan. Laut Planung soll der Abriss sämtlicher Gebäude vor Weihnachten erfolgt sein. Am Montag, 10. November 2025, sollen detaillierte Bodenuntersuchungen beginnen. Auf dem vorderen Teil der Grundstücksfläche möchte das Unternehmen Ratisbona einen Netto-Discounter errichten.
Osdorf möchte wachsen. Im Gildeweg soll eine neue Wohnbebauung mit 31 Wohneinheiten für Senioren, junge Leute und Familien entstehen. Dafür ist eine Änderung sowohl des Flächennutzungsplans als auch des Bebauungsplans Nr. 19 (B-Plan) erforderlich. Die entsprechenden Aufstellungsbeschlüsse hat die Gemeinde bereits gefasst. Auf der jüngsten Sitzung der Gemeindevertretung wurde der Vorentwurf für die Neuaufstellung des B-Plans Nr. 19 vorgestellt.
Mauer für Mauer fällt, Dach für Dach wird abgetragen – nach und nach verschwinden die abbruchreifen Gebäude an der Gettorfer Straße 1 – zur Freude vieler Osdorferinnen und Osdorfer, die die verfallenen Gebäude als Schandfleck betrachtet haben. Jahrelang dominierten sie das Erscheinungsbild den Ortseingang von Osdorf. Ende 2022 hat die Gemeinde das 8722 Quadratmeter große Grundstück gekauft, um es einer neuen Nutzung zuzuführen.
Mit Ratisbona steht ein neuer Nutzer bereits fest
Mit dem Unternehmen Ratisbona steht ein neuer Nutzer bereits fest. Das Unternehmen möchte an der Gettorfer Straße 1 einen Netto Discounter mit einer Verkaufsfläche von 798 Quadratmetern errichten. Insgesamt sind 4300 Quadratmeter für den Lebensmittelmarkt vorgesehen. Dafür ist ein Abriss der Bestandsgebäude erforderlich. Im Zuge dessen lässt die Gemeinde sämtliche Gebäude auf der Fläche abreißen.

Deshalb sind Bodendetailuntersuchungen erforderlich
Das gesamte Grundstück ist im Altlastenkataster des Kreises Rendsburg-Eckernförde erfasst. Noch unklar ist die Nutzung des hinteren Teils des Grundstücks. Ein Bodengutachten hat ergeben, dass insbesondere im rückwärtigen Teil des Grundstücks der Boden belastet ist. Detailuntersuchungen sind erforderlich, um Art und das genaue Ausmaß der Belastungen zu erkennen. Von den Ergebnissen hängt die weitere mögliche Entwicklung der Fläche ab. „Die Ergebnisse der Bodendetailuntersuchungen bestimmen den weiteren Weg der Entwicklung des gesamten Grundstückes“, sagt Bürgermeister Kohrt.

Montag beginnen die Bodenuntersuchungen
Die Detailuntersuchungen beginnen am Montag, 10. November. Die Bodenuntersuchungen können zeitgleich zu den laufenden Abbrucharbeiten vorgenommen werden. Deswegen hat die Abbruchfirma mit den Arbeiten im rückwärtigen Teil des Grundstücks begonnen. Kostenpunkt für die Detailuntersuchungen: rund 58.000 Euro. Das Land fördert die Maßnahme mit 75 Prozent.
Osdorf will wachsen: Neubaugebiet Gildeweg
Osdorf möchte ein weiteres Neubaugebiet ausweisen. Das Plangebiet befindet sich östlich des Ortskerns, nördlich angrenzend an die Bebauung des Gildeweges und südlich des Gewässers „Kronsbek-Aschau“. Neben Einfamilienhäusern, Doppelhäusern und Reihenhäusern hat der Investor, Firma Jöhnk aus Gettorf, auch ein Mietshaus vorgesehen. Dafür ist eine Änderung sowohl des Flächennutzungsplans als auch des Bebauungsplans Nr. 19 erforderlich. Die entsprechenden Aufstellungsbeschlüsse hat die Gemeinde bereits gefasst.
Innenministerium muss Änderung des Flächennutzungsplans genehmigen
Das Bauleitverfahren befindet sich noch ganz am Anfang. Eine Änderung des Flächennutzungsplans ist erforderlich, da die bislang landwirtschaftlich genutzte Fläche in Wohnfläche umgewandelt werden soll. Dafür ist die Genehmigung des Innenministeriums nötig. Zurzeit liegt ein Vorentwurf für den geänderten B-Plan „Gildeweg“ vor. Die erste Beteiligungsrunde läuft: Nach Auskunft des Planungsbüros BCS Stadt + Region sind in der frühzeitigen Beteiligung der Bürger keine Anregungen eingegangen. Aktuell findet die frühzeitige Beteiligung der Behörden und der Träger öffentlicher Belange statt.

Spatenstich frühestens Mitte / Ende 2027
Bislang sind im Vorentwurf nur Baufelder zu sehen – konkrete Grundstücksgrößen stehen noch nicht fest. Fest steht nur, dass in dem Neubaugebiet ausreichend Parkmöglichkeiten geschaffen werden sollen. So soll jedes Einfamilienhaus zwei Stellplätze vorhalten. Öffentliche Parkplätze sollen in der Straße an drei verschiedenen Stellen entstehen. Die Grundflächenzahl wird auf 0,4 festgesetzt, das heißt, dass 40 Prozent des Grundstücks bebaut bzw. versiegelt werden dürfen. Der früheste Termin für einen Spatenstich könnte Mitte / Ende 2027 sein.
Energiewende: Osdorf unterstützt Windenergie
Die Gemeinde Osdorf bekennt sich klar zur Energiewende, die sie auch auf kommunaler Ebene vorantreibt. Deswegen unterstützt sie die Ausweisung einer weiteren Vorrangfläche in ihrem Gemeindegebiet für die Nutzung als Windenergiefläche. Das erklärt die Gemeinde im Rahmen des Beteiligungsverfahrens zum zweiten Entwurf des Regionalplans zum Thema Windenergie an Land: Das Land Schleswig-Holstein hat Ende Juli 2025 die Entwürfe für die neuen Regionalpläne Windenergie an Land vorgestellt. Die Gemeinde Osdorf fällt wie der gesamte Kreis Rendsburg-Eckernförde in den Planungsraum II. Im Rahmen des öffentlichen Beteiligungsverfahrens war die Gemeinde aufgefordert, eine Stellungnahme abzugeben.
Bitte um Umwandlung der Potenzialfläche in Windvorranggebiet
„Die Gemeinde steht der Nutzung von Windenergie grundsätzlich positiv gegenüber. Sie sieht in der Windkraft einen wichtigen Baustein zur Erreichung der Klimaziele und zur Sicherung einer zukunftsfähigen Energieversorgung“, heißt es in der Stellungnahme. Vor diesem Hintergrund regt die Gemeinde an, die Potenzialfläche PR2_RDE_126 als Vorranggebiet in den Entwurf aufzunehmen.
In Kürze:
Personalien: Da Gabriele Schoenwaldt (SPD) den Vorsitz im Sozialausschuss niedergelegt hat, wurde eine Neuwahl erforderlich: Als neue Ausschussvorsitzende wurde Heike Grube (SPD) gewählt. Gabriele Schoenwaldt bleibt Mitglied in der Gemeindevertretung und im Ausschuss. Da Jan Timmermann sein Mandat als stellvertretender wählbarer Bürger im Sozialausschuss niedergelegt hat, wurde Birte Holtmann als neue Stellvertreterin gewählt. Sie wurde auch als stellvertretende wählbare Bürgerin in den Finanzausschuss gewählt.
Außenbereichssatzung Austerlitz: Die Gemeinde möchte für die Außenbereiche Außenbereichssatzungen erlassen. Den Anfang macht der Ortsteil Austerlitz. Ziel der Satzung ist es, Wohnsiedlungen zu schützen und zu stärken und Rechtsgrundlagen zu schaffen. Auf diese Weise soll die Gefahr von Splittersiedlung unterbunden werden. Bislang liegt ein Vorentwurf vor. Der Arbeitskreis „Außenbereichssatzung“ wird darüber beraten. Auch hier wird es ein Beteiligungsverfahren für Bürger und Träger öffentlicher Belange geben.
Beschaffungsmaßnahmen Freiwillige Feuerwehr Osdorf: Für das neue Löschfahrzeug werden eine neue Tragkraftspritze und ein Funksystem erforderlich. Kosten für die Tragkraftspritze: 25.000 Euro, mögliche Förderung: 4000 Euro. Kosten für das Funksystem: 5000 Euro, mögliche Förderung 500 Euro. Die Gemeindevertretung stimmte den Beschaffungsmaßnahmen zu. Die Kosten sollen in die Haushaltsplanung für 2026 aufgenommen werden.
Einsparmaßnahme Haushalt 2026: Aufgrund des hohen zusätzlichen Finanzbedarfs (Investitionen) der Gemeinde in 2026 in Höhe von 795.000 Euro hat die Gemeindevertretung mehrheitlich beschlossen, den Punkt „Einstellung eines/r Dorfhelfer/in“ aus dem Haushaltsplan 2026 zu entfernen. Auf diese Weise spart die Gemeinde 46.000 Euro ein. Finanzausschussvorsitzender Wolfgang Radtke (CDU) wies darauf hin: „Hier in Osdorf wird kein Geld verschwendet.“ Die Gemeinde sei aufgrund ihrer Struktur unterfinanziert. Wegen vergleichsweise geringer Gewerbesteuereinnahmen habe Osdorf eine schwache Steuerkraft bzw. Finanzkraft. Seit 2021 ist die Gemeinde von der Kommunalaufsicht zur Haushaltskonsolidierung verpflichtet.

Landjugend Osdorf / 72-Stunden-Aktion / ein Rückblick / 23. September 2025
Die Landjugend Osdorf packt an: Ein Radlader, zwei Minibagger, fünf Schubkarren, viele Schaufeln und sehr viele Hände waren 72 Stunden im Einsatz – das Ergebnis: ein Beachvolleyballfeld für Osdorf
Landesweit fand am vergangenen Wochenende, 18. bis 21. September 2025, die 72-Stunden-Aktion des Landjugendverbandes Schleswig-Holstein statt. Unter dem Motto „Nicht lang schnacken – anpacken“ nahmen in diesem Jahr landesweit 35 Landjugendgruppen mit über 1000 Personen teil. Ehrenamtlich erfüllten sie eine gemeinnützige Aufgabe in ihren Gemeinden.
„Die Projekte schaffen nachhaltige Werte in den Bereichen Dorferneuerung, Kulturpflege, Bildung und Naturschutz – generationsübergreifend und über Vereinsgrenzen hinweg“, beschreibt der Landjugendverband die Aktion, die alle vier Jahre veranstaltet wird.
Im Altkreis Eckernförde beteiligten sich zwei Landjugendgruppen, die beide im Amtsbereich Dänischer Wohld zuhause sind: Die Landjugend Osdorf und die Landjugend Lindau-Revensdorf.
Das war die Aufgabe der Landjugend Osdorf: Bau und Herrichtung eines 12 Meter x 20 Meter großen Beachvolleyballfeldes im Bürgerpark. Was sich so leicht anhört, war echte Knochenarbeit: Denn insgesamt waren 300 Tonnen Material zu bewegen: 150 Tonnen Erde und 150 Tonnen Sand. Der Spruch des Tages lautete: „Kannste Karre schieben, kannste Arbeit kriegen.“
Was am Donnerstag, 18. September, um 18 Uhr mit der Übergabe der Aufgabe durch Thorsten Möller (SPD/in Vertretung für Bürgermeister Helge Kohrt) begann, endete am Sonntag, 21. September, um 16 Uhr mit der Übergabe eines Volleyballes: Landjugend-Vorsitzende Lea-Sophie Rohde überreichte dem Bauausschussvorsitzenden Möller den Ball, der anschließend in einem Einweihungsspiel zum Einsatz kam.

Einweihung mit einem Spiel – danach: Beachvolleyball für alle
Unter großer Anteilnahme großer und kleiner Bürgerinnen und Bürger spielten Mitglieder der Landjugend gegen den Jugendbeirat. Der hatte den Beachvolleyballplatz im Bürgerpark seinerzeit auf seine Wunschliste für die Gemeinde gesetzt. Verstärkt wurde das Team des Jugendbeirates, der als Gremium zur Gemeinde gehört, durch einige Gemeindevertreter. Danach hieß es, Beachvolleyballfeld frei für alle. Für das leibliche Wohl war mit Getränken und Würstchen vom Grill gesorgt. Unter den Zuschauern waren auch die beiden stellvertretenden Bürgermeister Peter Hammerich (CDU) und Barbara Winter-Claus (WgO) sowie die Dörpsprinzessin und der Dörpsprinz.
Ihr habt zu recht den Ehrenamtspreis bekommen.
Doch bevor es losging, dankte Thorsten Möller im Namen der Gemeinde der Landjugend für ihren tollen Einsatz für die Dorfgemeinschaft: „Ihr habt zu recht den Ehrenamtspreis bekommen.“ Der Bürgerpark, ein Ort der Begegnung für alle Einwohnerinnen und Einwohner jeder Altersgruppe, sei jetzt um eine Attraktion reicher und spreche besonders die Jugend an.

Und so lief die 72-Stunden-Aktion ab:
Donnerstag, 18. September, 18 Uhr, Übergabe der Aufgabe. Alle notwendigen Materialien und Verpflegung wurden in zwei Containern vor Wind und Wetter geschützt untergebracht. Die beiden Container waren eine Spende der Tischlerei Arp aus Bornstein. Bei schlechtem Wetter konnte sich die beteiligten Landjugendmitglieder im trockenen Container eine Pause gönnen.
Freitag, 19. September, 9 Uhr: Die Maschinen, ein kleiner Radlader und zwei Minibager, gesponsert von den Firmen Max Lorenz aus Sprenge und Malchin aus Osdorf, wurden abgeholt. Zu dem Zeitpunkt war die Fläche für das zukünftige Volleyballfeld bereits durch die Gemeindearbeiter abgesteckt.
Wir mussten darauf achten, an jeder Stelle gleich viel Erde abzutragen, damit die Fläche waagerecht wird.
Dann ging die eigentliche Arbeit los: Eine 12 x 20 Meter große Fläche musste ausgekoffert werden: Mit Spaten wurden an einer Seite der Fläche die Ränder abgetragen und weggeschaufelt, mit den Minibaggern 40 Zentimeter Erde abgetragen. Ein Rotationslaser war das Messinstrument der Stunde, denn: „Wir mussten darauf achten, an jeder Stelle gleich viel Erde abzutragen, damit die Fläche waagerecht wird“, erklärt Sebastian Brien. Am späten Nachmittag war es dann soweit: Die ersten Schubkarren voller Sand konnten in die leere Fläche geschüttet und verteilt werden. Der Sand wurde von der Firma Glindemann gesponsert.

Blasen an den Händen, schmerzende Muskeln, Stimmung super
Zeitgleich sorgten einige Landjugendmitglieder dafür, dass das selbstgebaute Insektenhotel seinen Platz bekam und standsicher einbetoniert wurde. Der Freitag war der härteste Tag: Bis 2 Uhr nachts waren Landjugendmitglieder vor Ort. Erste Blasen an den Händen, schmerzende Muskeln in den Armen und Beinen waren zu spüren. Auch so mancher Rücken zwickte. Aber das gehörte dazu: Die Stimmung war super!
Reicht der Sand?
Samstag, 20. September, 9 Uhr: Es wurde weiter gebaggert und viel Sand geschaufelt und gefahren. Die Vorrichtung für die Netzpfosten wurde vergraben, und immer wieder wurde noch viel Sand aufs Feld transportiert. „Die genaue Sandverteilung hat viel Zeit in Anspruch genommen – und es wurde lange und viel geharkt“, sagte Dorothee Ströh. Denn es stand schon die Frage im Raum: Reicht der Sand?
Und dann waren da noch 150 Tonnen Bodenaushub zu verteilen
Langsam nahm das Beachvolleyballfeld Gestalt an: Die Pfosten und das Netz wurden montiert. Zentimetergenau verlegte und fixierte die Landjugend die Spielfeldabgrenzung. Das Volleyballfeld war fertig, trotzdem war die Arbeit noch nicht getan: 150 Tonnen Bodenaushub mussten um das Feld herum verteilt werden. Nebenbei wurde der Barfußpfad im Bürgerpark von Unkraut befreit und mit neuen Materialien befüllt.

Und immer wieder die Suche nach Erdklumpen im Sand
Sonntag, 21. September, 12 Uhr: Jetzt waren nur noch Restarbeiten zu erledigen. Aber auch in den wenigen Stunden vor der Übergabe um 16 Uhr wurde der Sand auf dem Volleyballfeld immer wieder nach störenden Erdklumpen durchsucht. Um 16 Uhr erfolgte die Übergabe im Regen. Pünktlich zum Einweihungsspiel hörte der Regen auf – sehr zur Freude der Landjugend und der rund 80 erschienenen großen und kleinen Einwohner.
Tolles Gemeinschaftserlebnis
Die Landjugend zieht eine positive Bilanz der Aktion: „Wir haben das ganze Wochenende sehr viel Lob und Unterstützung erhalten. Und wir hatten Dank der vielen Spenden tolle Mahlzeiten und waren mehr als gesättigt“, so Dorothee Ströh.
Die dritte Teilnahme
Zum dritten Mal hat die Landjugend Osdorf an der 72-Stunden-Aktion teilgenommen, erstmals war es 2013 (Bau eines Geräteschuppens für die evangelische Kita). Vor vier Jahren baute die Landjugend bei der zweiten Teilnahme vier Sitzbänke für die Gemeinde.
Sie haben die Landjugend Osdorf bei der 72-Stunden-Aktion unterstützt:
DRK Osdorf: 500 Euro, Landgasthof Hammerich: 30 Euro; Dibberns Gasthof: 30 Euro; Imke Petersen: 50 Euro; Kirchhoff Getränke: Getränke; Firma Friedrich Niemann: eine Schubkarre plus zehn Schaufeln; Edeka Johannsen: 50 Euro- Gutschein für Lebensmittel; Hof Jacobsen: Eier; Getränke Behn: Getränke; Bäckerei Witt: belegte Brötchen am Samstag; Schlachterei Siemsen Osdorf: 50 Grillwürstchen;
Bäckerei Sörensen: belegte Brötchen, Croissants am Samstag, Brötchen für Grillwurst am Sonntag; Bäckerei Steiskal: 3x Marzipankranz; Mutti Klemm: Kuchen
Katja Eggebrecht: Pizzabrötchen; Anika Mau: Pizzabrötchen; Jana Blöcker: Kuchen & Mandelhörnchen; Tischlerei Arp: Baucontainer Bereitstellung; Firma Glindemann: sehr günstige Sandlieferung 150 Tonnen; Max Lorenz: Minibagger und Radlader;
Hallenbau Malchin: Bagger; Frank Sommerfeld: fertige Flächen gefräst; Lütt und Plietsch Meike Onusseit: Strom; CDU Osdorf & Noer-Lindhöft: Palette Kakao und 50 Euro-Bäcker-Gutschein. Die AktivRegion hat die Aktion mit 750 Euro aus dem Jugendförderfonds gefördert.

Sozialausschuss Osdorf / Schlüsselprojekte aus dem Ortsentwicklungskonzept: Sportanlagen und Feuerwehrgerätehaus / 19. September 2025
Wie sollen die Sportanlagen der Zukunft aussehen? Osdorfer Sportverein: „Das Wichtigste ist, dass wir den Jugendlichen zeigen, dass wir ihnen etwas bieten können“
Auf der jüngsten Sitzung des Sozialausschusses unter dem Vorsitz von Wenke Skyschus, stellvertretende Ausschussvorsitzende (SPD), ging es u.a. um zwei Schlüsselprojekte aus dem Ortsentwicklungskonzept (OEK), das unter Mitwirkung der Einwohnerinnen und Einwohner, von Vereinen und Verbänden erstellt wurde und dass die Gemeinde 2024 beschlossen hat: Konkret ging es um die Sportanlagen und das Feuerwehrgerätehaus.
17 Fußball-Jugendmannschaften plus Herren- und Damenmannschaften plus Alt-Liga – die Fußballsparte des Osdorfer Sportvereins hat Zuwachs wie seit 40 Jahren nicht mehr. Bei aller Freude über den Zuwachs gibt es aber auch Schattenseiten: Bei Punktspielen fehlt es an Umkleideräumen. Es fehlt an ausreichenden Trainingsmöglichkeiten, da der sogenannte B-Platz im Winterhalbjahr witterungsbedingt oft ab November bis März gesperrt ist. Zudem ist das Sportheim in die Jahre gekommen.
Osdorfer Sportverein wichtiger Player in der Gemeinde
Der OSV wünscht sich einen zweiten Trainingsplatz, am liebsten aus Kunstrasen und ausgestattet mit Fluchtlicht, um auch im Winter draußen trainieren zu können. So steht es in einem Konzept, dass der Sportverein der Gemeinde vorgelegt hat. Die Politik hat erkannt, dass der OSV zu den wichtigsten Playern in der Gemeinde gehört und viel zur Gemeinschaft in Osdorf beiträgt. Deshalb befassen sich die gemeindlichen Gremien mit der Thematik. Vor Kurzem stand das Thema auf der Tagesordnung des Sozialausschusses.
Entwurf unter der Überschrift „Was sein Könnte“
Zu Gast war Stefan Koerner vom Büro B2K Kühle-Koerner PartG mbH Architekten/Stadtplaner. Er präsentierte dem Ausschuss Entwürfe für eine erste Vorplanung: Die Vorgabe: Schaffung eines neuen Platzes (Kunstrasen) mit Fluchtlichtanlage und neue Umkleidevarianten unter Berücksichtigung der Gegebenheiten. Der Entwurf steht unter der Überschrift „was sein könnte“.

Es gibt mehrere Entwurfsvarianten
Herausgekommen sind mehrere Entwurfsvarianten. Die Varianten unterscheiden sich durch die Lage des neuen Platzes – mal muss mehr Land dazu gekauft werden, mal weniger. Allen gemeinsam ist ein moderner einstöckiger Gebäudekomplex, der unter dem Stichwort Dorfgemeinschaftshaus weitaus mehr als Umkleideräume und Sportheim bietet. Die Varianten sehen unterschiedliche Standorte des Gebäudes vor.
Das neue Sportheim im neuen Dorfgemeinschaftshaus
Im Entwurf zeichnet sich der barrierefreie Gebäudekörper lichtdurchflutet und hell aus, weil viel Glas verbaut werden soll. Im Erdgeschoss sind insgesamt sechs Umkleideräume, vier Duschräume, sieben WCs (darunter ein behindertengerechtes), ein Schiedsrichter- und Erste-Hilfe-Raum sowie ein Technikraum vorgesehen.

Herzstück ist ein großer Multifunktionsraum
Über eine Treppe, alternativ ein Aufzug, geht es ins Obergeschoss. Dort erwartet die Besucher neben dem Sportheim (Platz für 55 Personen) eine Küche (Pommes/Würstchen) samt Tresen. Herzstück ist ein 115 Quadratmeter großer Multifunktionsraum, der mittels einer mobilen Trennwand in zwei Räume geteilt werden kann. Auf diese Weise kann dort Sport betrieben werden und es ist genug Platz für Tagungen oder Seminare von Vereinen oder anderen Institutionen. Auf Begeisterung bei den Ausschussmitgliedern stieß der große, auf drei Seiten des Gebäudes umlaufende Balkon, von dem aus Zuschauer die Punktspiele ihrer Mannschaft bestens verfolgen können.
Angesichts der haushälterischen Lage der Gemeinde ist uns allen klar, dass wir vier Millionen Euro nicht zahlen können, zumal der Betrag noch ohne die Kosten für den Grunderwerb ist.
Die geschätzten Kosten für den neuen Gebäudekomplex belaufen sich auf 2.082.285 Euro. Für den Kunstrasenplatz schätzt der Planer die Kosten auf 1.250.000 Euro, sodass sich eine Netto-Summe von 3.332.285 Euro ergibt. Für die Gemeinde entscheidend ist die Brutto-Summe von 3.965.419 Euro – zu viel für die Gemeinde. „Angesichts der haushälterischen Lage der Gemeinde ist uns allen klar, dass wir vier Millionen Euro nicht zahlen können“, sagte die stellvertretende Ausschussvorsitzende Skyschus, „zumal der Betrag noch ohne die Kosten für den Grunderwerb ist.“
Wir müssen vorbereitet sein, wenn es neue Fördermöglichkeiten gibt. Dann gilt nämlich das Windhundverfahren.
Wichtig sei, dass man ein fertiges, förderfähiges Konzept in der Schublade liegen habe, „denn ohne Förderung geht es nicht“, so Wenke Skyschus. Bürgermeister Helge Kohrt (SPD) betonte, dass spätestens im zweiten Quartal 2026 die Richtung, die man bei der Entwicklung der Sportanlagen einschlagen wolle, klar sein müsse. „Wir müssen vorbereitet sein, wenn es neue Fördermöglichkeiten gibt. Dann gilt nämlich das Windhundverfahren.“ Man vereinbarte, mit dem OSV weiterhin im engen Austausch zu bleiben, um in die detaillierteren Planungen zu gehen.

Das Feuerwehrgerätehaus weist viele Mängel auf
Eine schlechte Einsicht in die Ausfahrt auf die Straße, eine zu kleine Stellfläche für das 2028 erwartete neue Löschfahrzeug, fehlende Schwarz-Weiß-Trennung, fehlende Geschlechtertrennung der Umkleideräume und des Sanitärbereichs, ein zu kleiner Raum der Jugendfeuerwehr – die Liste in Sachen Zustand des Feuerwehrgerätehauses der Freiwilligen Feuerwehr Osdorf ist lang.
Anbau oder Neubau an anderer Stelle?
Anbau am Bestandsgebäude oder Neubau des Feuerwehrgerätehauses an anderer Stelle? Mit dieser Frage beschäftigt sich aktuell ein Arbeitskreis, dem Angehörige der Feuerwehr und Mitglieder der Gemeindevertreter angehören. Auch für dieses Projekt soll bis Mitte 2026 eine fertige, förderfähige Schubladenplanung vorliegen.

Osdorfer Dorffest 2025 / Ehrenamtspreis / Dörpsprinzessin & Dörpsprinz / 25. Juli 2025
Der Ehrenamtspreis 2025 geht an die Landjugend Osdorf und Umgebung
Ein Highlight im Osdorfer Gemeindeleben ist das jährliche Dorffest, an dem sich traditionell die Vereine und Verbände der Gemeinde beteiligen. Dem Fest am Nachmittag mit Spiel und Spaß für die Kinder folgt am Abend die Disco im Zelt, wie immer organisiert von der Landjugend Osdorf und Umgebung.
Spannend wird es, wenn Bürgermeister Helge Kohrt (SPD) den Träger oder die Trägerin des Ehrenamtspreises sowie die Namen der Dörpsprinzessin und des Dörpsprinzen bekannt gibt.
Am Sonnabend, 19. Juli, war es wieder soweit – auf dem Sportplatz wurde das Dorffest gefeiert. Viele Stationen waren aufgebaut – bei den Kindern kam besonders die Schatzsuche gut an: In einem Container voller Sand galt es, Gold und Edelsteine zu finden, was gar nicht so einfach war. Minitischtennisplatten, eine Hüpfburg und weitere Stationen luden die Mädchen und Jungen zum Mitmachen ein.
Spielstationen für die Kinder – Klönschnack für die Erwachsenen
Während die Kinder alle Stationen bespielten und ihre Stempel abholten, konnten die Erwachsenen bei Kaffee und Kuchen sowie Grillwurst in Ruhe Klönschnack halten. Nachdem die Spielstationen geschlossen waren, wurde es spannend: Die Proklamation der Dörpsmajestäten stand an.
Erstmalig und einmalig: Dörpsmajestäten und Dörpskinder
Die Dörpsprinzessin 2025 heißt Lenja Barske, der Dörpsprinz 2025 heißt Jonas Kohrt. Sie wurden erstmalig und einmalig per Juryentscheid ermittelt, da sie 2026 bei den Feierlichkeiten für das 150-jährige Gemeindejubiläum verantwortungsvolle Aufgaben übernehmen werden. Deshalb wurden zusätzlich zwei Dörpskinder ausgelost: Die Lose fielen auf Samuel Hentschel und Lia Hoffmann.
Die Entscheidung trifft die Gemeindevertretung in nichtöffentlicher Sitzung
Jedes Jahr entscheidet die Gemeindevertretung wenige Wochen vor dem Dorffest in nichtöffentlicher Sitzung darüber, wer in dem Jahr mit dem „Ehrenamtspreis“ für ein herausragendes ehrenamtliches Engagement in der Gemeinde zum Wohle anderer ausgezeichnet werden soll. In diesem Jahr fiel die Wahl auf die Landjugend Osdorf und Umgebung.
Landjugend – ein großartiges Engagement seit fast 60 Jahren
Seit fast 60 Jahren engagiert sich die Landjugend für die Jugend in Osdorf und Umgebung: Durch viele Aktivitäten wie Kanufahrten, Bowling, Freizeiten und Gruppenabende stärkt der Verein das Zusammengehörigkeitsgefühl der Jugendlichen. Das Engagement geht aber weit über die Vereinsgrenzen hinaus: So richtet die Landjugend die jährliche Scheunenfete in Aukamp aus, beteiligt sich an der Aktion „Sauberes Dorf“ und an der Gestaltung des Erntedank-Gottesdienstes. Bei 72-Stunden-Aktionen haben Mitglieder der Landjugend einen neuen Geräteschuppen und ein neues Klettergerüst für die „Kirchenmäuse“ gebaut sowie vier Sitzbänke für die Gemeinde.
Ihr seid eine große Bereicherung für unsere dörfliche Gemeinschaft.
„Ihr seid eine große Bereicherung für unsere dörfliche Gemeinschaft“, sagte Bürgermeister Kohrt, „daher habt ihr nicht nur den diesjährigen Ehrenamtspreis verdient, sondern mit Beschluss der Gemeindevertretung vom 15. Juli die Gewissheit, dass die Gemeinde euch ein Grundstück zur Verfügung stellen wird, damit ihr nach vielen Pachtverhältnissen endlich eine dauerhafte Bleibe habt.“ (Seit drei Jahren sucht die Landjugend nach einem neuen Raum für ihren Treffpunkt, da der Mietvertrag des bisherigen Raumes zum Mai 2026 gekündigt wurde.)
700 Gäste bei der abendlichen Disco
Der Ehrenamtspreis musste natürlich gefeiert werden. Und so vergnügten sich abends bei der Disco auf dem Sportplatz rund 700 Gäste bestens – organisiert von der Landjugend.

Sitzung der Gemeindevertretung Osdorf / 21. Juli 2025
Es tut sich etwas an der Gettorfer Straße 1 – Ende August beginnen die Abbrucharbeiten des alten Gebäudes
16 Punkte standen auf der Tagesordnung der letzten Sitzung der Osdorfer Gemeindevertretung vor der Sommerpause, zu der Bürgermeister Helge Kohrt (SPD) die Kommunalpolitikerinnen und Kommunalpolitiker am Dienstag, 15. Juli 2025, in Dibberns Gasthof begrüßte.
Unter anderem ging es um diese Themen: Die Landjugend Osdorf braucht dringend neue Räumlichkeiten für einen Treffpunkt. Vertreter der Landjugend nahmen an der Sitzung teil, um ihre Planungsüberlegungen für einen Standort in der Gemeinde vorzustellen.
Die Freiwillige Feuerwehr benötigt zwecks Verbesserung ihrer Einsatzfähigkeit ein Mittleres Löschfahrzeug (MLF). Ein Arbeitskreis „Feuerwehrgebäude“ wurde gegründet, der sich mit der Frage Neubau des Feuerwehrgerätehauses oder Sanierung/Weiterentwicklung des Bestandsgebäudes beschäftigen soll.
Für den Bebauungsplan Nr. 19 „Am Gildeweg“ wurde der Aufstellungsbeschluss für die 20. Änderung gefasst. Als fünfte Gemeinde im Amt Dänischer Wohld stimmte Osdorf der kommunalen Wärmeplanung im Konvoi-Verfahren zu.
Über die Entwicklung auf dem Grundstück an der Getttorfer Straße 1 ging Bürgermeister Kohrt in seinem Bericht ein. Dort wollen das Unternehmen Ratisbona Handelsimmobilien und die Netto Marken-Discount Stiftung & Co. KG einen Lebensmittelmarkt entwickeln. Bereits am 27. März 2024 wurde der Kaufvertrag für einen Teil des Grundstücks an der Gettorfer Straße 1 unterzeichnet.
Spatenstich ursprünglich Ostern 2025 geplant
Ursprünglich war der Spatenstich für den Lebensmittelmarkt bereits zu Ostern 2025 geplant – Mitte 2026 hätte der Discounter seine Türen öffnen sollen. Doch es kam zu Verzögerungen. So forderte der Kreis vor Baubeginn ein Gutachten in Bezug auf das Vorkommen von Schadstoffen im Boden, um sichere Wohn- und Arbeitsverhältnisse zu gewährleisten.
Abbrucharbeiten sollen vor Weihnachten 2025 fertig sein
Im Januar 2025 reichte die Gemeinde den Antrag auf Abbruchgenehmigung und den Bauantrag beim Kreis ein. Seit Anfang Juli liegen die Genehmigungen vor. Ende August kann mit den Abbrucharbeiten begonnen werden – zuerst finden die Arbeiten im Inneren des Gebäudes statt. Laut Planung sollen die Abbrucharbeiten vor Weihnachten beendet sein.
Die Ergebnisse der Bodendetailuntersuchungen bestimmen den weiteren Weg der Entwicklung des gesamten Grundstückes.
Erst im Anschluss, frühestens im Januar 2026, erfolgen Bodendetailuntersuchungen, die zwingend erforderlich sind. „Die Ergebnisse der Bodendetailuntersuchungen bestimmen den weiteren Weg der Entwicklung des gesamten Grundstückes“, erklärte der Bürgermeister. Zurzeit bereitet die Amtsverwaltung die Ausschreibung für die Bodendetailuntersuchung vor.
Baubeginn für den Markt frühestens im ersten Quartal 2026
Das Ministerium für Energiewende, Klimaschutz, Umwelt und Natur (MEKUN) fördert die Untersuchungen mit 75 Prozent der förderfähigen Kosten. Der Bürgermeister wagte eine vorsichtige Prognose: „Mit dem Baubeginn des Marktes ist frühestens im ersten Quartal 2026 zu rechnen.“
Es wird eine Querungshilfe über die Gettorfer Straße geben
Helge Kohrt hatte passend zum Thema Lebensmittelmarkt eine positive Nachricht im Gepäck: „Die Genehmigung für die Querungshilfe für die Gettorfer Straße ist da.“ Im nächsten Jahr soll sie realisiert werden.
Seit drei Jahren sucht die Landjugend einen neuen Raum
Seit 1957 gibt es die Landjugend Osdorf und Umgebung. Seit neun Jahren hat die Landjugend ihren Treffpunkt in der Gemeinde Noer. Zum 15. Mai 2026 läuft der Mietvertrag für den Raum aus. Seit drei Jahren sucht die Landjungend nach neuen Räumlichkeiten für ihren Treffpunkt – bislang vergeblich. Jetzt hat die Landjugend einen Plan entwickelt, den der Vorsitzende Julian Sommerfeld auf der Gemeindevertretersitzung vorstellte.
Ihr Vorschlag: die Fläche hinter dem zukünftigen Netto Markt nutzen
Die Landjugend hat eine Fläche im neuen Gewerbegebiet an der Gettorfer Straße 1 im Blick: die bisher ungenutzte, rund 1000 Quadratmeter große Fläche hinter dem zukünftigen Netto Markt. Für das Gebäude favorisiert die Landjugend eine Containerlösung: Mehrere Wohncontainer sollen eine Gesamtfläche von 126 Quadratmetern bilden.
Ihr Plan: viel Eigenleistung und eine Pacht für die Gemeinde
Die Finanzierung der Container und alle erforderlichen Arbeiten für das Grundstück sollen in Eigenleistung erbracht werden. Für das Grundstück könnte die Landjugend bis zu 250 Euro monatlich an Pacht zahlen. Die Vorteile des Standorts: gute Erreichbarkeit für die Landjugend-Mitglieder ohne Auto, keine Lärmbelästigungen der Nachbarn, ausreichende Parkmöglichkeiten.
Die Fläche ist genehmigungsfähig
Nach Auskunft vom Bürgermeister Kohrt ist das Anliegen der Landjugend auf der Fläche genehmigungsfähig. Er wies darauf hin, dass es aufgrund der Bodendetailuntersuchungen, die frühestens im Januar 2026 erfolgen können, ein Problem mit der Zeitschiene der Landjugend geben könnte. Deshalb bräuchte sie eine Übergangslösung.
Bedenken aus der Gemeindevertretung
Nach Auskunft von Bauausschussvorsitzendem Thorsten Möller (SPD) liegt noch keine Anfrage für die Gewerbefläche vor. Die Fläche sei also verfügbar. Niels Bienefeld (SPD) und Heike Grube (SPD), „Die Zeit drängt“, unterstützten den Plan der Landjugend. Bedenken kamen u. a. von Stefan Baasch (CDU), der die Frage nach potenziellen Gewerbesteuereinnahmen stellte, die der Gemeinde so verloren gingen. Er plädierte dafür, erst einmal die Ergebnisse aus den Bodendetailuntersuchungen abzuwarten, bevor man etwas entscheide.
Alternative: Grundstück an der Dänischenhagener Straße
Ein Vorschlag für einen alternativen Standort wurde genannt – in der Dänischenhagener Straße, Höhe Kleingartenverein. Die Gemeinde überlegt seit Jahren, dort ein weiteres Gewerbegebiet zu entwickeln. Der Schritt würde Erschließungskosten für die Gemeinde nach sich ziehen.
Antrag auf Prüfung beider Flächen
Peter Hammerich (CDU) stellte den Antrag, beide Alternativen (Fläche hinter Netto Markt und Fläche an der Dänischenhagener Straße im noch nicht vorhandenen Gewerbegebiet) in Bezug auf Baurecht und Kosten auf Pro- und Contra-Fakten hin zu überprüfen.
Die Gemeinde wird der Landjugend ein Grundstück zur Verfügung stellen.
Das Signal aller Gemeindevertreterinnen und Gemeindevertreter war deutlich: Die Landjugend Osdorf und Umgebung soll unterstützt werden. So stimmten alle dem Beschlussvorschlag des Bürgermeisters zu: „Die Gemeinde wird der Landjugend ein Grundstück zur Verfügung stellen.“ Welches Grundstück, müsse – wie erklärt – noch überprüft werden.
Feuerwehr: Antrag auf Beschaffung eines MLF
Die Freiwillige Feuerwehr Osdorf hat 37 Mitglieder (Stand 15. Juli 2025). Die Feuerwehr hat einen Antrag an die Gemeinde auf Beschaffung eines Mittleren Löschfahrzeugs (MLF) gestellt. Gemeindewehrführer Jan Hoffmann begründete auf der Sitzung den Antrag, den vorzeitigen Maßnahmenbeginn beim Kreis zu beantragen.
Bürgermeister soll beim Kreis den Antrag stellen
Das neue MLF soll das bisherige zweite Fahrzeug, ein Tragkraftspritzenfahrzeug (TSF), ersetzen. Der Beschluss der Gemeindevertretung war einstimmig: Bürgermeister Kohrt erhielt den Auftrag, die Zuschüsse für das Fahrzeug und den vorzeitigen Maßnahmenbeginn zu beantragen. Nach der Bestellung wird mit einer Lieferzeit von rund 24 Monaten gerechnet.

Feuerwehrgerätehaus Osdorf entspricht nicht mehr den modernen Sicherheitsstandards
1989 wurde in Osdorf das Feuerwehrgerätehaus, das sich an der Schule/gegenüber den Kitas befindet, gebaut. 2006 wurde es umgebaut. Trotzdem entspricht es in seiner Ausstattung nicht mehr den modernen Sicherheitsstandards: Es fehlen die Schwarz-Weiß-Trennung und die Geschlechtertrennung sowie ein geeigneter Platz für die Anhänger.
Neubau oder Sanierung des Bestandsgebäudes?
Für die Gemeinde, die für das Feuerwehrwesen und den Brandschutz in der Gemeinde verantwortlich ist, stellt sich jetzt die Frage: Soll das bestehende Feuerwehrgerätehaus saniert bzw. an Ort und Stelle weiterentwickelt werden oder soll ein Neubau für die Zukunft her. Der Bürgermeister nannte die ungefähren Kosten für einen Neubau: „Das würde rund 4 Millionen Euro kosten, pro Tor eine Million Euro.“ Zugleich gab er zu bedenken, dass der Standort des jetzigen Feuerwehrgerätehauses durch die Verkehrslage ein hohes Konfliktpotenzial habe.
Arbeitskreis Feuerwehrgerätehaus wurde gegründet
Ein Arbeitskreis wurde gegründet, dem neben dem Bürgermeister und Gemeindevertretern auch Vertreter der Feuerwehr sowie der Ordnungsamtsleiter des Amtes Dänischer Wohld angehören. Die Aufgabe des Arbeitskreises ist es, Fakten und Grundlagen zu sammeln, um Ideen für beide Möglichkeiten, Neubau oder Sanierung des Bestandsgebäudes, zu erarbeiten.
Am Gildeweg soll neue Wohnbebauung entstehen
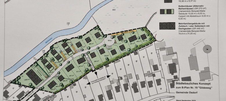
Im Gildeweg soll eine Wohnbebauung 31 Wohneinheiten für Senioren und Familien entstehen. Dafür ist eine Änderung sowohl des Flächennutzungsplans als auch des Bebauungsplans Nr. 19 „Am Gildeweg“ erforderlich. Das Plangebiet befindet sich östlich des Ortskerns, nördlich angrenzend an die Bebauung des Gildeweges und südlich des Gewässers „Kronsbek-Aschau“. Die Gemeindevertretung votierte einstimmig für die entsprechenden Aufstellungsbeschlüsse.
Kommunale Wärmeplanung: Osdorf stimmt als fünfte Gemeinde dem Konvoi-Verfahren zu
Als fünfte Gemeinde im Amt Dänischer Wohld stimmte Osdorf für die Beteiligung am Konvoi-Verfahren für die kommunale Wärmeplanung. Zuvor hatten bereits Tüttendorf, Neuwittenbek, Lindau und Neudorf-Bornstein entsprechende Beschlüsse gefasst. So lautet der Beschluss: „Beschluss über die Aufstellung der kommunalen Wärmeplanung im kommunalen Konvoi mit Unterstützung der Klimaschutzagentur im Kreis Rendsburg-Eckernförde gGmbH“.
Die Wärmeplanung wurde bereits im September 2023 freiwillig beschlossen
Bereits in ihrer Sitzung am 26. September 2023 hat die Gemeindevertretung die freiwillige kommunale Wärmeplanung beschlossen. Die Klimaschutzagentur, in der die Gemeinde wie alle Gemeinden im Amt Dänischer Wohld Mitglied ist, wurde gebeten, entsprechende Förderanträge zu stellen.
Seit März 2025 komplett andere Förderkulisse und Gesetzeslage
Wegfall der Förderungen und neue Gesetze schufen eine völlig neue Situation für die Gemeinden. War die Wärmeplanung vorher freiwillig, ist sie seit März 2025 durch die Änderung des Energiewende- und Klimaschutzgesetzes des Landes (EKWG-SH), das eine Ausführung des Wärmeplanungsgesetzes des Bundes von 2024 darstellt, gesetzlich verpflichtend.
Jetzt greift das Konnexitätsprinzip
Das hat positive finanzielle Auswirkungen für Neudorf-Bornstein, da jetzt an der Stelle der vormals gedachten Förderungen nun eine echte Konnexität vorhanden sein wird. Das bedeutet, dass der Kommune die Kosten für die Wärmeplanung erstattet werden.
Osdorf bekommt 22.295,50 Euro als Ausgleich
Das heißt für Osdorf, dass die Gemeinde auf Antrag einen pauschalen Ausgleichsbetrag in Höhe von 8,50 Euro je Einwohner bekommt – entspricht 22.295,50 Euro. Sollten die Kosten für die Wärmeplanung höher sein, erfolgt die Festlegung der tatsächlichen Höhe der Ausgleichsmittel nach der Schlussrechnung. Die Kommune muss also in Vorleistung gehen. Entsprechend wird der Gemeindevertretung empfohlen, die Summe von 22.295,50 Euro im Haushalt als Aufwand zu veranschlagen.
Gemeinde des Amtes Dänischer Wohld stehen ganz oben auf der Liste der Klimaschutzagentur
Die Projektplanung übernehmen die Klimaschutzagentur des Kreises und die Amtsverwaltung. Sie haben eine entsprechende Vereinbarung erarbeitet, die alle acht amtsangehörigen Gemeinden beraten und dafür einen Beschluss fassen sollen – noch vor Beginn der Sommerpause, um eine zügige Umsetzung zu gewährleisten. Ist das passiert, stehen die Gemeinden des Amtes Dänischer Wohld ganz oben auf der Liste der Klimaschutzagentur. Spätestens bis zum 30. Juni 2028 muss die Wärmeplanung der Kommunen fertig sein – Stand jetzt.
Vorteile des Konvoi-Verfahrens
Um die Ressourcen zu bündeln, ist eine Konvoi-Bildung geplant – da das Energiewende- und Klimaschutzgesetz des Landes Schleswig-Holstein es kleineren Gemeinden unter 10.000 Einwohnern zwecks Kostenersparnis und Ressourcennutzung ermöglicht, im Verbund mit anderen Kommunen die Wärmeplanung aufzustellen.
Bürgermeister hat volles Stimmrecht in der Lenkungsgruppe
Haben alle Gemeinden dem Konvoi-Verfahren für kommunale Wärmeplanung zugestimmt bzw. einen Beschluss gefasst, wird ein externes Planungsbüro mit den Untersuchungen beauftragt. Die kommunale Wärmeplanung wird sowohl als Gesamtübersicht als auch als individueller Wärmeplan für jede einzelne Gemeinde erarbeitet. Es soll eine Lenkungsgruppe gebildet werden, in der die Bürgermeisterin und alle sieben Bürgermeister Mitglied sind – sie haben ein volles Stimmrecht. Für Osdorf wird Bürgermeister Helge Kohrt Mitglied der Lenkungsgruppe sein.
In Kürze:
Spenden an die Gemeinde: Die Gemeinde hat 2024 Spenden in Höhe von 25.500 Euro bekommen. Enthalten ist in dieser Summe eine 20.000 Euro-Spende des Unternehmers für die Container für den OSV.
Änderung in der Hundesteuersatzung: Um den Bürgerinnen und Bürgern einen Anreiz zu geben, einen Hund aus dem Tierheim bei sich aufzunehmen, hat die Gemeindevertretung eine Ergänzung in der Hundesteuersatzung aufgenommen: Nach Vorlage eines entsprechenden Nachweises kann Frauchen oder Herrchen beim Amt Dänischer Wohld einen Antrag auf die Befreiung von der Hundesteuer stellen.

Gemeinde unterstützt Osdorfer Sportverein / Umkleide-Container für die Fußballmannschaften / 17. Juli 2025
Bei der Aufstellung war Augenmaß gefragt: Fünf Container sollen in Zukunft Platz für Umkleideräume, Sanitärbereich und Schiedsrichterraum bieten
Schon seit Längerem hat der Osdorfer Sportverein (OSV) massive Probleme in Sachen Umkleideräume – es sind einfach zu wenig. Der Mitgliederzuwachs in der Fußballsparte hat dafür gesorgt, dass es gerade im Jugendbereich mehr Mannschaften gibt, die auch am Punktspielbetrieb teilnehmen. Kommen Gastmannschaften, gibt es nicht genügend Umkleideräume.
Der OSV wandte sich an die Gemeinde – die hat reagiert. Eine schnelle Lösung war gefragt. Da eine bauliche Maßnahme an der Sporthalle nicht so ohne Weiteres zügig realisiert werden kann, hat sich die Gemeinde in Absprache mit dem OSV für eine Container-Lösung entschieden. Am Donnerstag wurden die Container am Sportplatzrand aufgestellt.
Ein Kran musste her, der die 5 Tonnen schweren Container über die Bäume hinweg zielsicher an dem vorgezeichneten Platz abstellen konnte. Da war Augenmaß gefragt, sowohl vom Kranführer als auch von den Gemeindearbeitern Eggert Steffen-Larsen, Wolfgang Kober und Florian Holzer sowie vom Bauausschussvorsitzenden Thorsten Möller (SPD), der mit anpackte.
Jeder Container hat seinen vorgezeichneten Platz auf der Betonplatte
Denn die fünf Container mussten alle Platz auf der Betonplatte finden, die im Vorfeld gegossen worden war. Da wurde genau geguckt, nachgemessen und wenn notwendig, auch um zwei Zentimeter verrückt – bis jeder Container exakt auf seiner vorgezeichneten Stelle stand. Alle Versorgungsleitungen für Wasser, Elektrizität und Abwasser wurden bereits vor der Herstellung der Betonplatte verlegt.
Der Duschcontainer befindet sich in der Mitte
Jeder Container hat eine Fläche von 18 Quadratmetern. Zwei Container sollen als Umkleidekabinen dienen. Zwischen den beiden befindet sich der Container für den Sanitärbereich (Duschen und WC), der jeweils durch eine Zwischentür begehbar ist. Auf der linken Seite befindet sich der Container für den Schiedsrichter. Dort sollen auch Materialien gelagert werden. Ein Container mit Wänden aus Glas dient als Eingangsbereich. Jetzt fehlt noch der Innenausbau, der in Eigenregie des OSV erfolgen soll.
Schlussrechnung steht noch aus
Nach Auskunft von Bürgermeister Helge Kohrt (SPD) hat die Gemeinde im Haushalt 50.000 Euro für den Posten OSV-Container bereitgestellt. Auf 40.000 Euro belaufen sich die Kosten für die Anschaffung der Container. Das Unternehmen spendet 20.000 Euro, sodass für die Gemeinde 27.600 Euro (Umsatzsteuer) bleiben. Die Rechnung für die Herstellung der Betonplatte samt Versorgungsleitungen steht noch aus.

Osdorf / Energie-Olympiade 2025 / Energie- und Klimaschutzpreis für Kommunen in Schleswig-Holstein / 19. Juni 2025
Die Gemeinde Osdorf erhält den Sonderpreis Rookie für die beste Newcomer-Kommune
Erstmals hat die Gemeinde Osdorf an der Energie-Olympiade teilgenommen und sogleich den Sonderpreis für die beste Newcomer-Kommune gewonnen. Am Dienstag, 17. Juni 2025, fand die Preisverleihung im Nordkolleg in Rendsburg in Anwesenheit des Ministers für Energiewende, Klimaschutz, Umwelt und Natur, Tobias Goldschmidt, statt.
Der Wettbewerb wird alle zwei Jahre von der Gesellschaft für Energie und Klimaschutz Schleswig-Holstein GmbH (EKSH) veranstaltet – erstmals 2007. Geschäftsführer ist Prof. Dr.-Ing. Frank Osterwald, Wettbewerbsleiter ist Niklas Bebendorf.
Für die diesjährige Energie-Olympiade wurde der Wettbewerb neu strukturiert: Es gab sechs Disziplinen (EnergieProjekt groß, EnergieProjekt klein, EnergieKommune, EnergieKommunikation, EnergieHeld:in und MobilitätsPreis) und drei neue Sonderpreise (Rookie, Plietsch und Einreich-Champion).
Der Sonderpreis war eine Überraschung
Bürgermeister Helge Kohrt (SPD) und Barbara Winter-Claus (WgO), Vorsitzende des Klima- und Umweltausschusses, vertraten die Gemeinde Osdorf bei der Preisverleihung – sie wussten im Vorfeld nicht, ob die Gemeinde überhaupt einen Preis gewinnen würde.
Beworben für drei Disziplinen
Beworben hatte Osdorf sich in den Disziplinen MobilitätsPreis, EnergieKommunikation und EnergieHeld:in – gewonnen hat die Kommune den Sonderpreis Rookie. „Die neuen Sonderpreise machen die Teilnahme noch attraktiver – denn sie zeigen: Schon mit dem ersten Schritt, einer cleveren Idee oder besonderem Einsatz kann man viel bewegen“, heißt es in der Beschreibung der Preiskategorie durch die Gesellschaft für Energie und Klimaschutz Schleswig-Holstein GmbH.
„Stark gestartet, stark überzeugt“
„Stark gestartet, stark überzeugt“ – deshalb wurde die Gemeinde Osdorf mit dem Sonderpreis Rookie für die beste Newcomer-Kommune ausgezeichnet. Im Fokus steht das Maßnahmen-Bündel der Gemeinde zur Verbesserung der Mobilität der Osdorfer Bürgerinnen und Bürger – zum Beispiel durch die Einrichtung der Mobilitätsstation im Ortszentrum oder die Aufstellung der E-Ladestationen in der Gemeinde.
Das Preisgeld beträgt 2500 Euro
Die Auszeichnung ist mit einem Preisgeld von 2500 Euro dotiert, das nicht zweckgebunden ist. Wofür möchte die Gemeinde das Geld gebrauchen? „Wir werden im Klima- und Umweltausschuss in Ruhe über den Verwendungszweck sprechen“, sagt Bürgermeister Helge Kohrt auf Nachfrage.
2027 will die Gemeinde erneut teilnehmen – dann hoffentlich mit einem Leuchtturmprojekt
Auf jeden Fall sei der Sonderpreis ein Ansporn, bei der nächsten Energie-Olympiade 2027 erneut teilzunehmen. „2027 sind wir auch schon viel weiter in Bezug auf unser Wärmenetz“, erklärt der Bürgermeister, „zu dem Zeitpunkt ist die Quartiersgesellschaft Q.X bereits gegründet und arbeitsfähig, wenn alles klappen sollte. Das ist dann ein echtes Leuchtturmprojekt in Sachen klimaneutrale Wärmeversorgung für Kommunen auf dem Land, mit dem die Gemeinde teilnehmen würde.“

Sitzung des Bau- und Wegeausschusses Osdorf / 4. April 2025
Bau- und Wegeausschuss empfiehlt: Von Ortsschild zu Ortsschild – In den drei Hauptverkehrsstraßen durch das Dorf Osdorf soll Tempo 30 eingeführt werden
Top-Thema der Sitzung des Bau- und Wegeausschusses am 1. April unter dem Vorsitz von Thorsten Möller (SPD) war ein Antrag der SPD-Fraktion auf Einrichtung weiterer Tempo-30-Bereiche – zusätzlich zu den bereits bestehenden Tempo-30-Streckenabschnitten. Konkret geht es um die Einführung von Tempo 30 in der Noerer Straße ab Einfahrt Mühlenteich in Richtung Dorfmitte, in der Hauptstraße ab Meierei in Richtung Dorfmitte und im Weberberg ab Dorfmitte bis zum Ortsausgang.
Die Fraktionen von CDU und WgO stimmten dem Antrag der SPD zu. Die Entscheidung trifft die Gemeindevertretung. Sollte sie einen Beschluss fassen, soll bei der Verkehrsaufsicht des Kreises ein entsprechender Antrag gefasst werden.
Da in den Wohnbereichen bereits Tempo-30-Zonen eingerichtet wurden, hätte der Beschluss zur Folge, dass im gesamten Dorfbereich eine flächendeckende Geschwindigkeitsbeschränkung auf Tempo 30 gültig wäre.
SPD-Fraktionsvorsitzende Heike Grube begründete den Antrag: „Durch die Einführung von Tempo 30 sollen insbesondere Unfälle reduziert und die Sicherheit für Fußgänger und Radfahrer erhöht werden. Zudem zeigt sich, dass eine geringere Geschwindigkeit zu einer ruhigeren und damit lebenswerteren Umgebung beiträgt, was wiederum das soziale Miteinander in den Gemeinden fördert.“
CDU und WgO stimmten dem SPD-Antrag sofort zu
Verbesserte Verkehrssicherheit – insbesondere für Kita- und Schulkinder –, weniger Lärm, verbesserte Lebensqualität durch Tempo 30: Diesen Argumenten konnten die Fraktionen von CDU und WgO ohne großen Diskussionsbedarf sofort zustimmen.
Fahrt durchs Dorf dauert bei Tempo 30 nur minimal länger
Heike Grube wies darauf hin, dass Verkehrsteilnehmer für eine Fahrt mit dem Auto durch das Dorf mit 30 km/h nur geringfügig mehr Zeit benötigten als bei 50 km/h. Konkret: Durchfahrt Kreuzung bis Ortsende in Richtung Krusendorf, Länge: 1,3 Kilometer, Mehraufwand: 1,04 Minuten. Durchfahrt Kreuzung bis Noerer Straße in Richtung Noer, Länge: 1,2 Kilometer, Mehraufwand: 0,96 Minuten.

Novellierung der StVO macht‘s möglich
Möglich ist die Einrichtung weiterer Tempo 30-Abschnitte durch die Novellierung der StVO (Straßenverkehrsordnung). Sie gibt den Kommunen einen größeren Handlungsspielraum, Tempo 30 in ihren Ortschaften einzurichten – so können zum Beispiel jetzt Lücken bis 500 Meter zwischen bestehenden Tempo-30-Strecken geschlossen werden.
Wir möchten den Anwohnerinnen und Anwohnern in Austerlitz gleiche bauliche Möglichkeiten geben wie in Osdorf.
Die Gemeinde möchte im Ortsteil Austerlitz rechtliche Voraussetzungen für mögliche zukünftige Bauprojekte schaffen. Nach Auskunft des Ausschussvorsitzenden wären in Austerlitz weitere 10 bis 12 Wohneinheiten denkbar. „Wir möchten den Anwohnerinnen und Anwohnern in Austerlitz gleiche bauliche Möglichkeiten geben wie in Osdorf“, sagte Thorsten Möller.
Arbeitsgruppe und das Büro BCS sollen Entwurf einer Außenbereichssatzung erarbeiten
Das ist das Ergebnis der Arbeitsgruppe, die sich Ende Januar erstmals getroffen hat. Bauvorhaben wären durch den Erlass einer Außenbereichssatzung für Austerlitz möglich. Jetzt soll die Arbeitsgruppe gemeinsam mit dem Planungsbüro BCS Stadt + Region einen entsprechenden Entwurf erarbeiten, der anschließend im Bau- und Wegeausschuss beraten werden soll. Kostenpunkt für das Planungsbüro: rund 4100 Euro.
Borghorst und Borghorsterhütten
Für den Ortsteil Borghorst macht nach Auffassung der Arbeitsgruppe eine Außenbereichssatzung keinen Sinn – hier ist das Instrument des vorhabenbezogenen Bebauungsplans vorzuziehen. Im Ortsteil Borghorsterhütten kommt eine Lückenbebauung aufgrund der Weitläufigkeit der vorhandenen Bebauung nicht infrage.

Verzögerungen beim Bauvorhaben Netto-Discounter Gettorfer Straße 1
Bürgermeister Helge Kohrt (SPD) gab einen Sachstandsbericht zum Bauvorhaben Gettorfer Straße 1, wo das Unternehmen Ratisbona einen Netto-Discounter errichten möchte. Eigentlich hätte der Abriss des bestehenden Gebäudes bereits erfolgen sollen. Es kommt zu Verzögerungen, da der Kreis vor Baubeginn ein Gutachten in Bezug auf das Vorkommen schädlicher Stoffe im Boden fordert, um sichere Wohn- und Arbeitsverhältnisse zu gewährleisten. Nach Auskunft des Bürgermeisters wird das im Nachtragskaufvertrag mit Ratisbona geregelt. Einen Abbruchantrag hat das Unternehmen beim Kreis zwischenzeitlich eingereicht – eine Abbruchfirma aus der Region wurde bereits gefunden.
In Kürze:
Halteverbot Schmiederedder/Hauptstraße: Der Ausschuss empfiehlt kurz vor der Einmündung des Schmiederedders in die Hauptstraße die Ausweisung eines absoluten Halteverbots. Hintergrund: Abgestellte Fahrzeuge in diesem Bereich erschweren die Einsicht in die Kreuzung, sodass eine Gefahrenlage entsteht. Ein entsprechendes Verkehrsschild soll aufgestellt werden. Die letzte Entscheidung trifft die Gemeindevertretung.
Neuer Wanderweg: Rund um die Kieskuhle soll ein Wanderweg entstehen. Das wurde bereits vor 25 Jahren im Planfeststellungsverfahren festgehalten. Noch ist der Wanderweg nicht freigegeben, da die Verkehrssicherheit noch nicht gegeben ist. Nach Auskunft des Bürgermeisters übernimmt die Firma Glindemann die Herrichtung des Weges. Hinsichtlich der Wegenutzung soll ein Vertrag geschlossen werden. Noch handelt es sich nicht um einen Rundweg: Momentan endet der Wanderweg im Nichts.
Querungshilfe Noerer Straße: Der Landesbetrieb Straßenbau und Verkehr SH fordert für die Genehmigung der Errichtung der Querungshilfe den Entwurf eines Verkehrsplaners. Die Querungshilfe soll auf Höhe der Straße Mühlenteich entstehen.
Container für den Osdorfer Sportverein: Der OSV benötigt dringend Container als zusätzliche Umkleideräume. Nach Auskunft des Ausschussvorsitzenden Möller ist für die Aufstellung der Container ein Bauantrag erforderlich. Möller hofft, dass die Genehmigung noch vor dem Sommer vorliegt.